Chain-free three-bedroom semi with garden, garage and clear extension potential (STPP)..
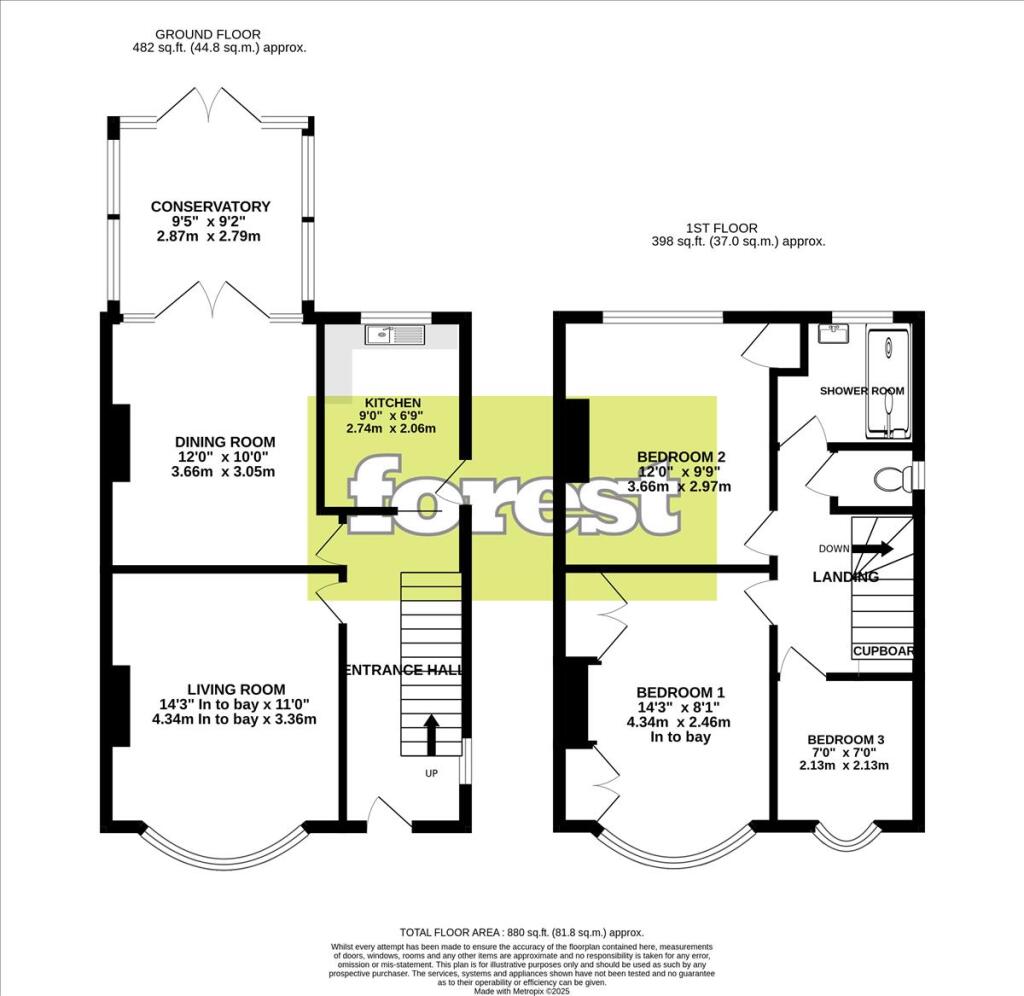
- Three-bedroom semi-detached house with 82 sqm (approx. 883 sqft)
- Private, fully enclosed rear garden not overlooked (approx. 20m)
- Detached garage/workshop plus off-street driveway parking
- Potential to extend/improve subject to planning permission (STPP)
- Requires modernisation throughout; EPC rating D
- Solid brick walls; insulation likely absent, energy upgrades advised
- Single shower room plus separate WC; limited bathroom provision
- Local crime rate above average; check neighbourhood safety measures
This three-bedroom semi-detached 1930s home on a sought-after Feltham road offers practical family living with clear scope to add value. The property sits on a decent plot with a private, enclosed rear garden and a detached garage/workshop, plus off-street parking — useful assets for families, hobbyists or buyers planning an extension (STPP).
Internally the layout is straightforward: living room with bay, separate dining room opening to a conservatory, kitchen and a first-floor shower room with separate WC. The house is chain free and ready for someone to modernise; the EPC is rated D and the solid brick walls likely lack cavity insulation, so buyers should budget for energy improvements and modernisation works.
Key positives are the plot size, garage, parking and scope to extend (subject to planning). Notable practical concerns include the need for updating throughout, garage requiring modernisation, solid-wall construction with assumed no insulation, and an EPC D rating. Crime in the area is above average — worth researching for those prioritising local security.
This home will suit families or buyers looking for a project with clear uplift potential near good local schools, fast broadband and excellent mobile signal. With no onward chain, a straightforward purchase and improvement programme could unlock significant future value.
3 bedroom semi-detached house for sale in Durham Road, Feltham, Middlesex, TW14 — £550,000 • 3 bed • 2 bath • 980 ft²
3 bedroom semi-detached house for sale in Main Street, Feltham, TW13 — £500,000 • 3 bed • 2 bath • 1282 ft²
3 bedroom semi-detached house for sale in Gladstone Avenue, Feltham, Middlesex, TW14 — £550,000 • 3 bed • 2 bath • 1252 ft²
3 bedroom semi-detached house for sale in Harlington Road West, Feltham, TW14 — £519,950 • 3 bed • 1 bath • 989 ft²
3 bedroom semi-detached house for sale in Peacock Avenue, Feltham, TW14 — £510,000 • 3 bed • 1 bath • 1528 ft²
3 bedroom semi-detached house for sale in Helen Avenue, North Feltham, TW14 — £525,000 • 3 bed • 1 bath • 784 ft²






















































