Spacious village living near top schools and local amenities.
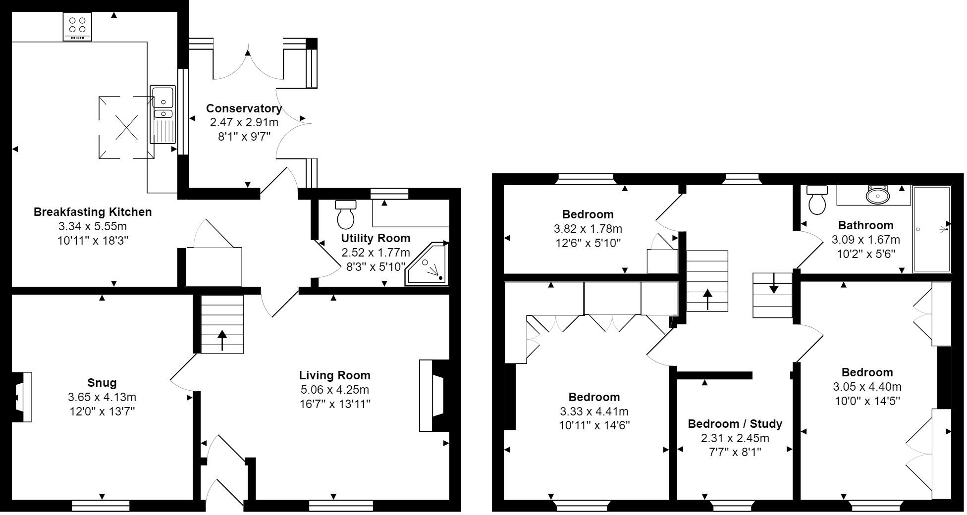
Double-fronted mid-terraced house with original features and inglenook surround
Large skylit kitchen-diner with granite worktops and integrated oven/hob
Conservatory provides a light relaxation area leading to rear path
Utility room with boiler, downstairs shower room and separate WC
Four bedrooms upstairs; middle bedroom presently used as a study
Single family bathroom for four bedrooms; may need consideration
Solid brick walls assumed uninsulated — potential energy upgrades needed
Shared right of way along rear track; small enclosed front garden
Set on a peaceful terrace in the sought-after village of Corbridge, this double-fronted mid-20th-century house offers spacious family living across multiple floors. The layout includes a light living room with an original inglenook surround, a separate snug, a large skylit kitchen-diner and a conservatory leading to a small rear path and shed. Four bedrooms upstairs suit growing families or home office needs.
Practical features include mains gas central heating with a boiler and radiators, a utility room with shower and WC, and double glazing. The property is offered with no onward chain and sits in a very low-crime, affluent neighbourhood close to highly rated local schools and village amenities, making the location a strong selling point.
Buyers should note the house has a single family bathroom serving four bedrooms and solid brick walls that are assumed to lack cavity insulation, which may affect running costs and improvement plans. The EPC is D64. There is a shared right of way along the rear track affecting 3 Prior Terrace and neighbouring properties. The plot is small, so outdoor space is limited.
This is a characterful family home with scope for targeted upgrading and energy-efficiency improvements. It will suit buyers who value village living, original period detail and easy access to excellent schools and amenities, and who are prepared to invest modestly to modernise heating efficiency and internal finishes.
4 bedroom terraced house for sale in Prior Terrace, Corbridge, NE45 5HN, NE45 — £335,000 • 4 bed • 2 bath • 1271 ft²
4 bedroom end of terrace house for sale in Corchester Avenue, Corbridge, NE45 — £625,000 • 4 bed • 3 bath • 1764 ft²
4 bedroom terraced house for sale in Front Street, Corbridge, NE45 — £900,000 • 4 bed • 2 bath • 2343 ft²
3 bedroom barn conversion for sale in Trinity Terrace, Corbridge, Northumberland, NE45 — £750,000 • 3 bed • 2 bath • 1851 ft²
4 bedroom detached house for sale in Ingleboro, St. Helens Lane, Corbridge, Northumberland, NE45 — £1,100,000 • 4 bed • 2 bath • 2201 ft²
4 bedroom detached house for sale in Cragside, Corbridge, NE45 — £600,000 • 4 bed • 2 bath • 2133 ft²


















































