Compact, low-upkeep home ideal for downsizers or commuters seeking value.
- Private, low-maintenance rear garden
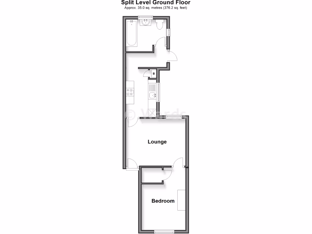
- Compact 1-bedroom ground-floor layout (377 sq ft)
- Walking distance to town centre and railway station
- Leasehold with approximately 65 years remaining
- Some lenders may refuse mortgages due to short lease
- Service charge £121pa; ground rent £242pa
- Solid brick walls likely uninsulated; double glazing pre-2002
- Fast broadband and excellent mobile signal
This ground-floor, one-bedroom maisonette offers compact, low-maintenance living with its own private rear garden — a rare find for a property of this size. The layout is straightforward and well presented, making it a sensible choice for someone downsizing or an investor seeking a commuter-let close to Chatham station.
The location works well for daily travel: the town centre and railway station are within walking distance, and broadband and mobile signal are strong. The building retains period character from its early 20th-century construction and has double glazing already installed.
Important practical notes: the flat is leasehold with about 65 years remaining, which may affect mortgage availability — some lenders can refuse on shorter leases. Service charge and ground rent are modest but ongoing costs; walls are likely uninsulated (solid brick as built), so consider insulation or heating efficiency improvements when budgeting.
Overall, this property suits a downsizer seeking a manageable home with minimal outdoor upkeep, or an investor after a well-located rental. Buyers should verify lease and lender acceptability and allow for possible modernization works to maximise potential.
2 bedroom ground floor maisonette for sale in New Road, Chatham, Kent, ME4 — £225,000 • 2 bed • 1 bath • 991 ft²
1 bedroom flat for sale in Fort Pitt Street, Chatham, Kent, ME4 — £93,000 • 1 bed • 1 bath • 463 ft²
1 bedroom end of terrace house for sale in Clarence Road, Chatham, Kent, ME4 — £150,000 • 1 bed • 1 bath • 560 ft²
2 bedroom maisonette for sale in Vale Drive, Chatham, Kent, ME5 — £170,000 • 2 bed • 1 bath • 456 ft²
1 bedroom ground floor maisonette for sale in Ifield Way, Gravesend, Kent, DA12 — £190,000 • 1 bed • 1 bath • 383 ft²
1 bedroom ground floor flat for sale in Gorse Avenue, Walderslade, Chatham, Kent, ME5 — £100,000 • 1 bed • 1 bath • 549 ft²






























