Generous garden and versatile living in a popular, well-connected neighbourhood.
Three bedrooms and large lounge/diner for family living
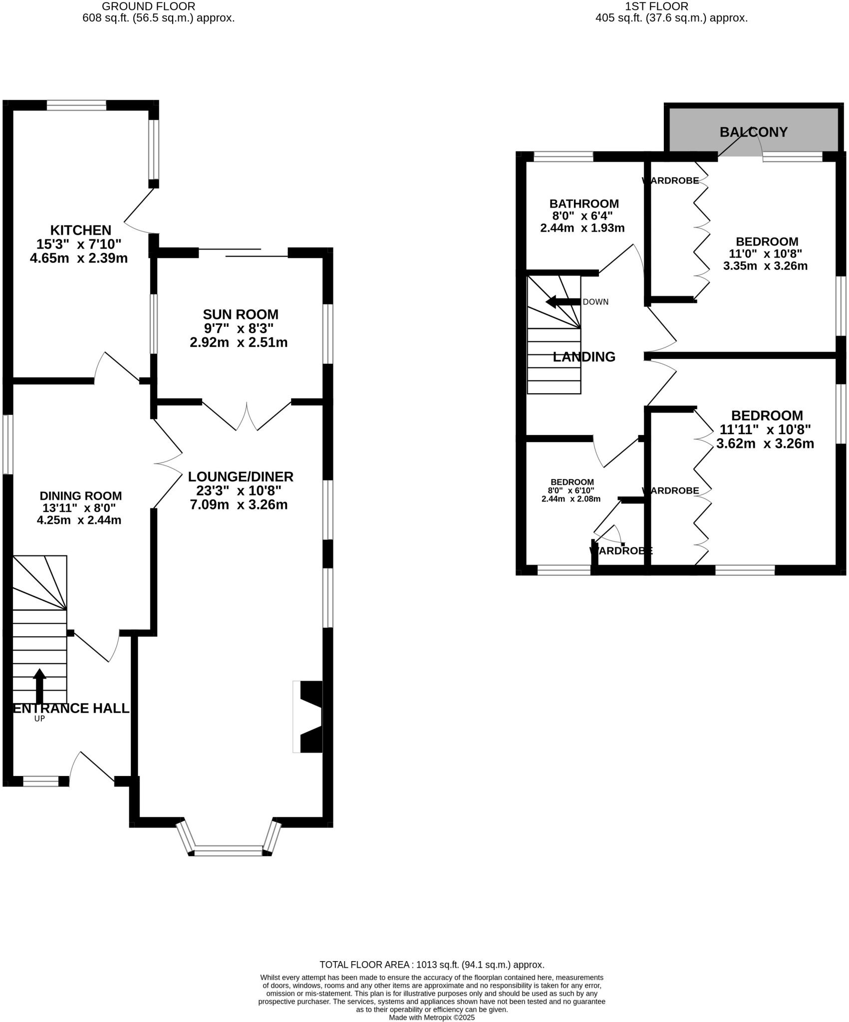
A larger-than-average 1930s detached house on Cherry Street offering flexible family accommodation over two floors. The layout includes a generous lounge/diner, separate dining room, conservatory and a modern kitchen — practical for everyday family life and social entertaining.
The rear garden is a standout feature: larger-than-average, mostly lawned with two decked areas, storage sheds and gated side access — plenty of space for children, pets and gardening. Three bedrooms upstairs and a four-piece bathroom give comfortable sleeping and bathroom provision for a growing family.
Practical considerations are clear and factual: parking is on-street only, the property sits in a ward with above-average crime and the solid-brick walls are assumed uninsulated (typical of this era). The house is freehold with gas central heating and double glazing installed after 2002. There are no known planning permissions or building hazards recorded.
This home will suit buyers seeking immediate family-ready space with scope to update and personalise. It’s in walking distance of Wigston town centre, schools and bus routes, making daily routines straightforward. Buyers wanting off-street parking, high-energy efficiency without retrofit, or a quiet low-crime neighbourhood should factor those into their decision.
3 bedroom detached house for sale in Byfield Drive, Wigston, LE18 — £385,000 • 3 bed • 2 bath • 1460 ft²
3 bedroom semi-detached house for sale in Denmead Avenue, Wigston, LE18 — £280,000 • 3 bed • 1 bath • 1010 ft²
5 bedroom detached house for sale in Reynolds Chase, Wigston, Leicester, LE18 — £545,000 • 5 bed • 2 bath • 1925 ft²
3 bedroom semi-detached house for sale in Spa Lane, Wigston, LE18 — £280,000 • 3 bed • 1 bath • 903 ft²
3 bedroom detached house for sale in Newgate End, Wigston, LE18 — £280,000 • 3 bed • 1 bath • 880 ft²
3 bedroom detached house for sale in Clipstone Gardens, Wigston, Leicester, LE18 — £290,000 • 3 bed • 2 bath • 862 ft²


















































































































































