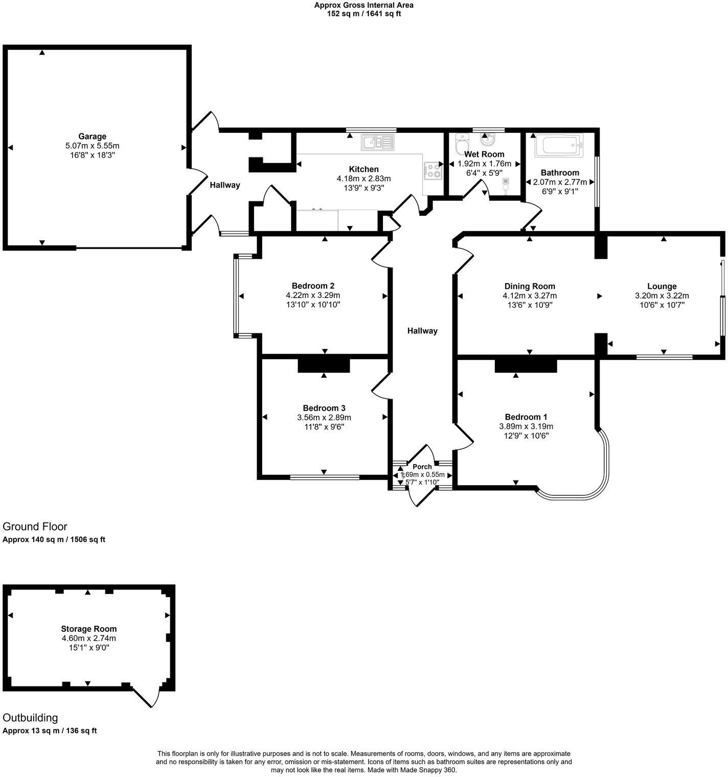
Three bedrooms with lounge/diner and sliding doors to rear garden
New Wren kitchen, utility room and combination boiler (installed ~6 months)
Exceptional garaging: double garage, single garage and workshop
Re-wired; new rubber roof to utility/lounge; new fascias and gutters
Separate wet room plus formal bathroom, adaptable for accessibility
EPC D (boiler fitted after EPC); broadband not currently connected
Large, low-maintenance plot; loft unboarded with no ladder access
Local area: above-average crime and very deprived classification
Set back from Victoria Road, this detached three-bedroom bungalow offers single-level living with exceptional garaging and a large, low-maintenance plot. The layout provides a spacious lounge/diner with sliding doors to the rear garden, a newly fitted Wren kitchen with adjoining utility and boiler room, plus a separate wet room and bathroom — practical for flexible living or guests.
Practical updates include a newly fitted combination boiler (installed c.6 months ago), full re-wire, new utility/lounge rubber roof, and replaced fascias and gutters. The property is offered freehold and chain-free, making it suitable for a quick, uncomplicated move. The double garage, single garage and workshop deliver rare storage and hobby space for a bungalow of this size.
There are some material considerations to note. The EPC remains at D (boiler replaced after the report), broadband is not currently connected at the property, and loft space is unboarded with no ladder access. The local area records above-average crime and sits within a very deprived area classification — factors buyers should weigh alongside the home’s size and location.
Overall this bungalow will appeal to downsizers or older buyers seeking roomy single-floor accommodation close to town and the seafront, who value garaging and a low-maintenance garden but are comfortable addressing or accepting the remaining practical limitations.



















































