Characterful, low-maintenance retreat near local amenities and countryside.
Reduced £15,000 below valuation, offering immediate value
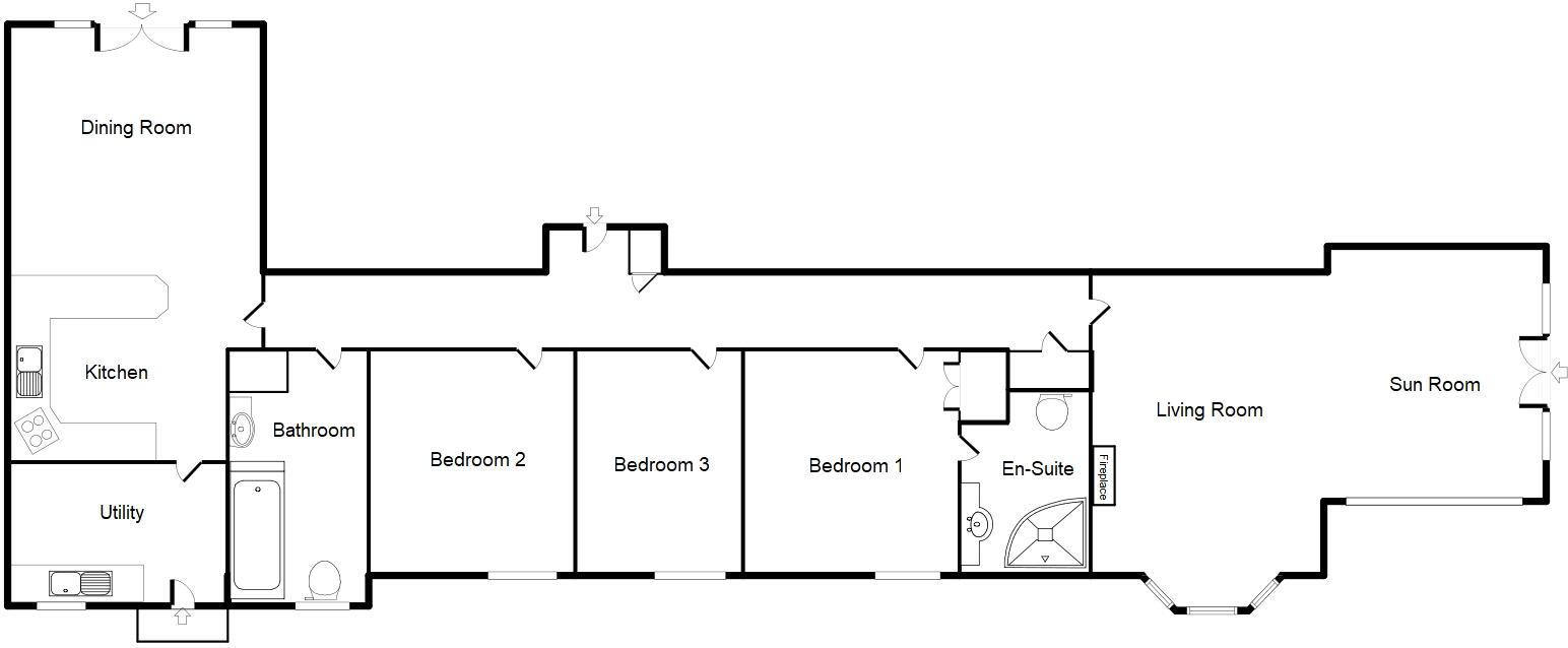
Set within a converted stone steading in Alves, this mid-terraced bungalow blends traditional character with modern renovation. Completed to building-regulation standards in 2008, the interior benefits from insulated floors, walls and ceilings, double-glazed windows and an electric wet underfloor heating system, all within the solidity of the original stone shell.
The layout is practical and accessible: a long linear plan includes an open-plan living room and sunroom, an open kitchen/dining area with skylights and patio doors, three double bedrooms (one with en suite) and a separate utility. Private gardens front and rear, plus a driveway and single garage, support comfortable retirement living or downsizing from a larger home.
Buyers should note a few material points: the EPC is rated D and council tax is Band D, broadband speeds are reported slow, and the driveway is shared. The property is freehold and offered below valuation, presenting clear value for purchasers who prioritise rural setting, solid construction and low-maintenance living.
Overall, the home suits someone seeking a characterful, easy-access property in a quiet village location with room for light adaptation and garden enjoyment. A viewing is recommended to appreciate the internal condition and the practical benefits of the conversion.
3 bedroom cottage for sale in Tucker Cottage, Main Road, Alves, Elgin, IV30 8UR, IV30 — £195,000 • 3 bed • 1 bath • 928 ft²
3 bedroom terraced bungalow for sale in Carsewell Steadings, Alves, IV30 — £285,000 • 3 bed • 2 bath • 1126 ft²
3 bedroom semi-detached house for sale in Treetops, Moorside, Alves, Forres, Moray, IV362RB, IV36 — £175,000 • 3 bed • 1 bath • 1251 ft²
4 bedroom bungalow for sale in Grangeview, Alves, Forres, Scotland, IV36 — £320,000 • 4 bed • 2 bath
3 bedroom detached bungalow for sale in Glen'aan, Maisondieu Road, Elgin, IV30 1RB, IV30 — £294,000 • 3 bed • 1 bath
5 bedroom detached house for sale in Pluscarden, Elgin, Morayshire, IV30 — £600,000 • 5 bed • 3 bath • 2795 ft²










































































































































































































































































































