Single-level, chain-free bungalow with large plot and double garage — tailored for over-60s options..
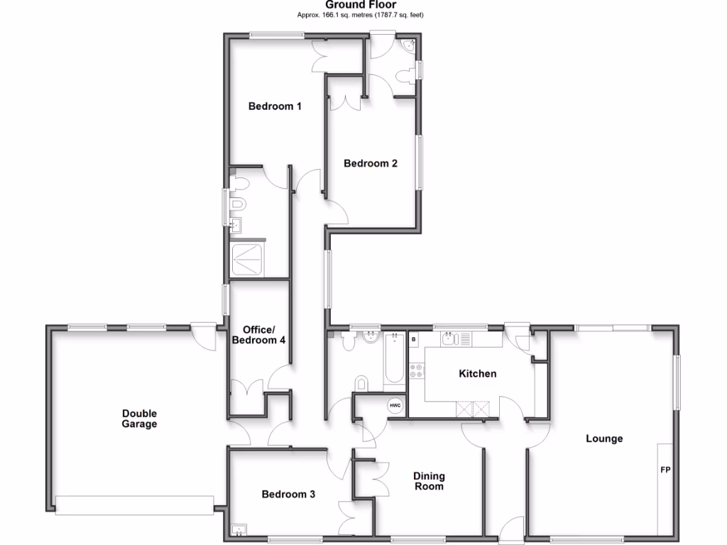
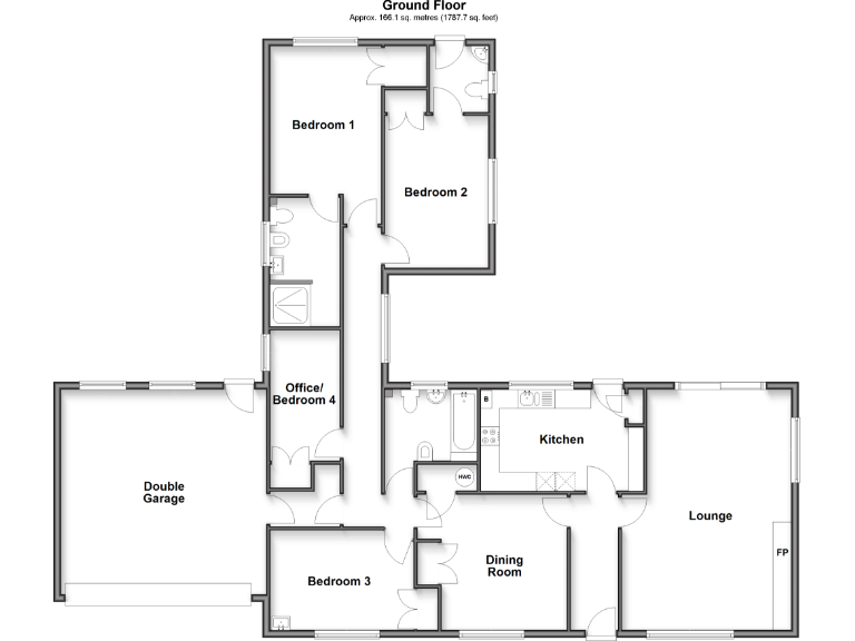
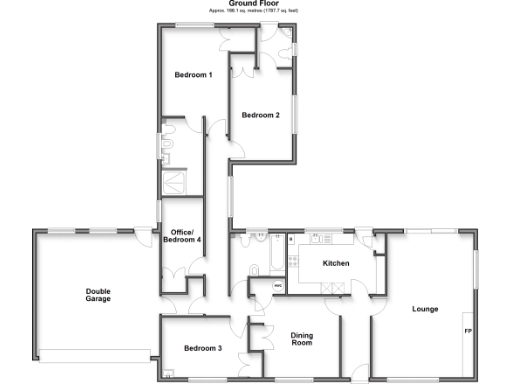
Four-bedroom detached bungalow on a large private cul-de-sac plot
Off-street parking plus a double garage for storage and vehicles
Suitable for retirement living; example Lifetime Lease price for 60+ buyers
Chain-free sale, ready for buyer to personalise
Kitchen from the 1980s — will benefit from updating or refurbishment
Council tax band above average — factor higher running costs
Double glazing and mains gas central heating present throughout
Lifetime Lease eligibility limited to over-60s; full market purchase option remains
An attractive detached four-bedroom bungalow set on a large plot in a private cul-de-sac in Whitfield, Dover. The property offers single-level living with two bathrooms, a generous lounge and separate dining room — well suited to retired buyers seeking space, privacy and easy access around the home. Off-street parking and a double garage add practical storage and car space.
This sale is offered with a Home for Life Lifetime Lease example price of £363,500 for buyers aged 60+ (market value £550,000). The Lifetime Lease allows purchase of a share (up to 50%) and typical savings range from 20%–50%; the exact price depends on age and circumstances. Note: Lifetime Lease eligibility is limited to over-60s and the full market-price option remains available to other buyers.
The bungalow is chain-free and ready for the purchaser to personalise. The kitchen dates from the 1980s and the property would benefit from updating in places — an opportunity for modest refurbishment to increase comfort and value. Council tax is above average; buyers should factor running costs into their budget.
Practical positives include double glazing, mains gas central heating, very low local crime and fast broadband. The location provides access to local amenities, leisure facilities and highly rated schools nearby for family visits. Images marked ‘Virtual Stager’ illustrate styling potential only.
3 bedroom bungalow for sale in Archers Court Road, Whitfield, Dover, Kent, CT16 — £231,500 • 3 bed • 2 bath • 1378 ft²
4 bedroom bungalow for sale in Bewsbury Crescent, Whitfield, Dover, Kent, CT16 — £550,000 • 4 bed • 2 bath • 1604 ft²
4 bedroom semi-detached bungalow for sale in Courtland Avenue, Whitfield, Dover, Kent, CT16 — £297,500 • 4 bed • 2 bath • 1378 ft²
3 bedroom end of terrace house for sale in Cranleigh Drive, Whitfield, Dover, Kent, CT16 — £215,000 • 3 bed • 1 bath • 1056 ft²
4 bedroom detached house for sale in Merlin Avenue, Whitfield, Dover, Kent, CT16 — £347,000 • 4 bed • 2 bath • 1303 ft²
3 bedroom detached bungalow for sale in Meadow View Road, Shepherdswell, Dover, Kent, CT15 — £248,000 • 3 bed • 1 bath • 1109 ft²














































































