**Standout Features:**
- Large parcel of vacant land with previous planning permission granted
- Situated in the desirable area of Lower Gornal, Dudley (Postcode: DY3 2AE)
- Enclosed plot ready for development, surrounded by residential properties
- Excellent mobile signal and fast broadband speeds
- Freehold tenure offering future flexibility for various construction possibilities
**Potential Concerns:**
- Site requires significant maintenance; currently overgrown and neglected
- Located in a high crime area that may affect investment potential
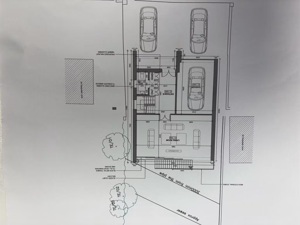
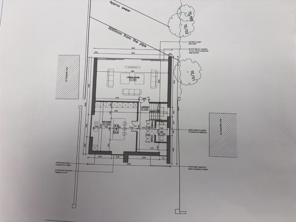
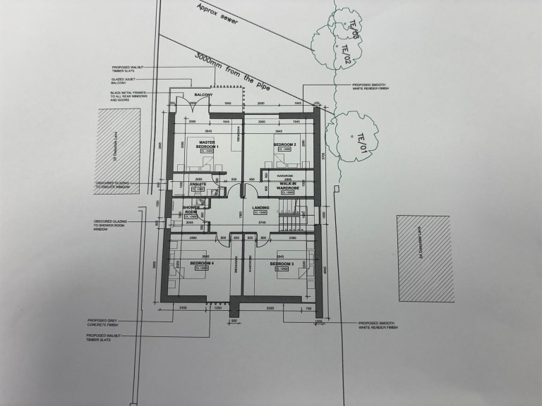
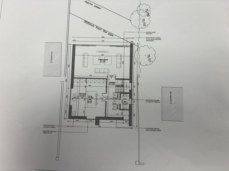
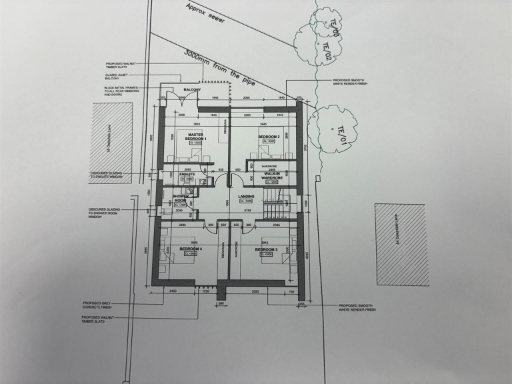
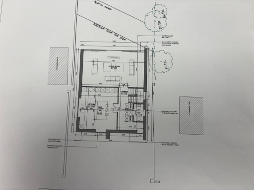
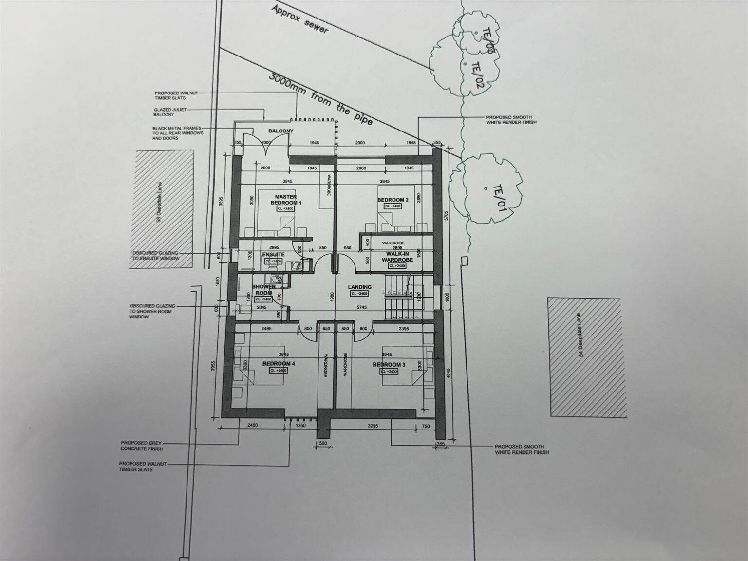
This expansive land opportunity in Lower Gornal presents a unique chance for investors and builders looking to capitalize on a highly sought-after location. Enclosed and awaiting revitalization, this plot affords nearly 1,141 square feet of development potential ideal for a small to medium-sized dwelling. The previous planning permission enhances its attractiveness, enabling swift advancement on your vision for the site. While acknowledging the current state of the plot, the suburban backdrop and proximity to local schools make it a savvy investment for those willing to undertake some renovation work.
Connect potential renters or buyers with a sense of community, comfort, and future potential. The area boasts an affluent demographic and is well-connected, providing easy access to local amenities, schools, and transport links. Act quickly to secure this valuable asset—land opportunities like this in Lower Gornal rarely stay on the market for long!
Land for sale in Douglass Road, Dudley, West Midlands, DY2 — £120,000 • 1 bed • 1 bath
Land for sale in The Stables, Summit Place, Lower Gornal, DY3 — £34,950 • 1 bed • 1 bath • 1034 ft²
Land for sale in Land On The North Side Of, St. Giles Close, Rowley Regis, West Midlands, B65 9EL, B65 — £100,000 • 1 bed • 1 bath
Land for sale in Cavell Road, Kates Hill, Dudley, West Midlands, DY2 7QZ, DY2 — POA • 1 bed • 1 bath
Land for sale in Prospect Row/New Bond Street, Dudley, West Midlands, DY2 — £225,000 • 1 bed • 1 bath
Land for sale in Clarence Street, Upper Gornal, DY3 — £90,000 • 1 bed • 1 bath






































