**Standout Features:**
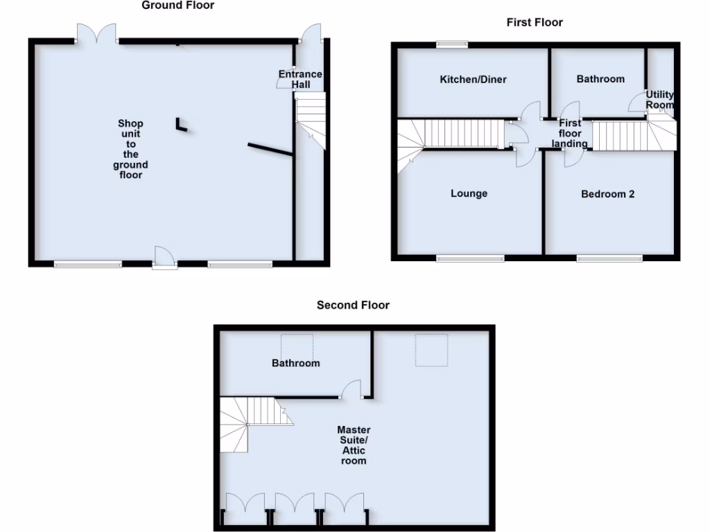
- Generously sized two-bedroom maisonette with ground floor shop unit
- Gas central heating and UPVC double glazing
- Spacious master suite with dressing area and en-suite
- Private garden and outhouse with potential for various uses
- Excellent location near local attractions and amenities
**Concerns:**
- Some maintenance may be required, including checks on heating and services
- Energy performance rating for the maisonette is currently rated band E
This beautifully presented two-bedroom maisonette in High Street, East Yorkshire, boasts ample living space while offering significant renovation potential. The layout includes an open plan lounge and dining kitchen, plus a master suite with an en-suite bathroom and dressing area, accented by stunning exposed brickwork and beamed ceilings that add character and charm. The ground floor features an empty shop unit that opens up possibilities for mixed-use, perfect for those looking to start a business or create additional rental income.
Outside, enjoy your own private garden, providing a quiet retreat, perfect for entertaining or relaxing, while the secure outhouse presents options for storage or a workshop. With local attractions, including Flamborough Lighthouse and North Landing Beach, walking distance away, this property promises a vibrant lifestyle. Although the property requires some updates and currently holds an energy performance rating of E, the price reflects its potential at just £259,950. Don't miss out on this unique opportunity in a highly desirable village setting!
Shop for sale in Chapel Street, Flamborough, YO15 — £230,000 • 2 bed • 2 bath • 1386 ft²
Shop for sale in Hilderthorpe Road, Bridlington, YO15 — £120,000 • 2 bed • 1 bath • 1446 ft²
2 bedroom apartment for sale in St. Johns Avenue, Bridlington, East Yorkshire, YO16 — £127,500 • 2 bed • 1 bath • 886 ft²
High street retail property for sale in Chapel Street, Bridlington, East Riding of Yorkshire, YO15 2DP, YO15 — £165,000 • 1 bed • 1 bath • 2519 ft²
Commercial property for sale in High Street, Bridlington, YO16 — £159,950 • 2 bed • 2 bath • 1727 ft²
4 bedroom maisonette for sale in Victoria Road, Bridlington, YO15 — £129,950 • 4 bed • 1 bath • 1215 ft²






























































