**Standout Features:**
- Expansive 3,500 sq ft Georgian country house
- 5 spacious bedrooms and 4 modern bathrooms
- Set on a 2.7-acre plot with beautifully landscaped gardens and paddocks
- High-end kitchen with bespoke cabinetry and integrated appliances
- Luxurious master suite with walk-in dressing room and en suite
- Electric wrought iron gates leading to a sweeping driveway and a barn with stable
- Direct access to communal gardens and bridleway into Ringwood Forest
- New oil tank and boiler installed in 2021 for efficient heating
**Potential Concerns:**
- Above-average crime rate in the area
- Broadband speeds rated as very slow
- Overall maintenance may be substantial due to property age (constructed before 1900)
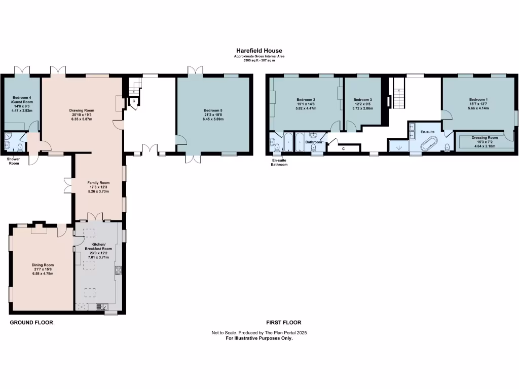
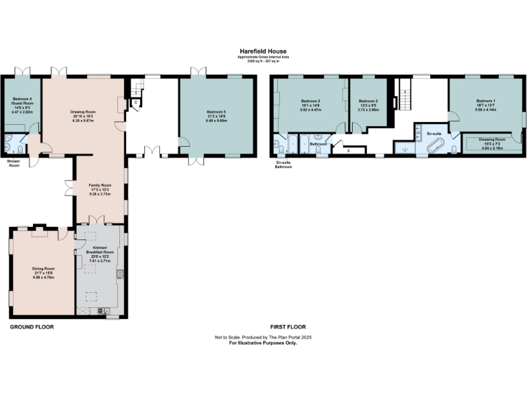
**Summary Description:**
Welcome to this stunning Georgian country house in Harbridge, perfectly nestled within serene paddocks and formal gardens. Spanning an impressive 3,500 sq ft, this inviting home features five generously-sized bedrooms and four elegantly appointed bathrooms, making it ideal for families or those seeking extra space. The heart of the home—a magnificent kitchen/breakfast room—boasts vaulted ceilings, bespoke cabinetry, and top-of-the-line integrated appliances, flowing effortlessly into a charming dining area and a spacious drawing room adorned with a traditional fireplace.
Enjoy the tranquil views of your extensive 2.7-acre estate, complete with landscaped gardens ideal for outdoor entertainment, children's play areas, or peaceful retreats. With private access to bridleways leading straight into the nearby Ringwood Forest, this property caters beautifully to outdoor enthusiasts. While the property exudes comfort and luxury, buyers should note the above-average crime rate and slow broadband speeds in the area. However, with plenty of opportunities for personalization and expansion, this residence is truly a unique find for anyone looking to make a dream country home a reality. Don’t miss your chance to own this exceptional property that blends elegance, space, and natural beauty—schedule a viewing today!
5 bedroom detached house for sale in Harbridge Court, Somerley, Ringwood, BH24 — £1,500,000 • 5 bed • 4 bath • 3500 ft²
3 bedroom detached house for sale in Bleak Hill, Harbridge, Ringwood, BH24 — £1,000,000 • 3 bed • 2 bath • 1631 ft²
5 bedroom detached house for sale in Bleak Hill, Harbridge, Ringwood, BH24 — £1,200,000 • 5 bed • 2 bath • 2000 ft²
Equestrian facility for sale in Forest Lane, Hightown Hill, Ringwood, Hampshire, BH24 — £1,800,000 • 4 bed • 3 bath • 3033 ft²
4 bedroom detached house for sale in Burley Road, Bransgore, Christchurch, Dorset, BH23 — £1,650,000 • 4 bed • 4 bath • 3006 ft²
7 bedroom detached house for sale in Highwood, Ringwood, Hampshire, BH24 — £3,500,000 • 7 bed • 4 bath • 4510 ft²






































































































































