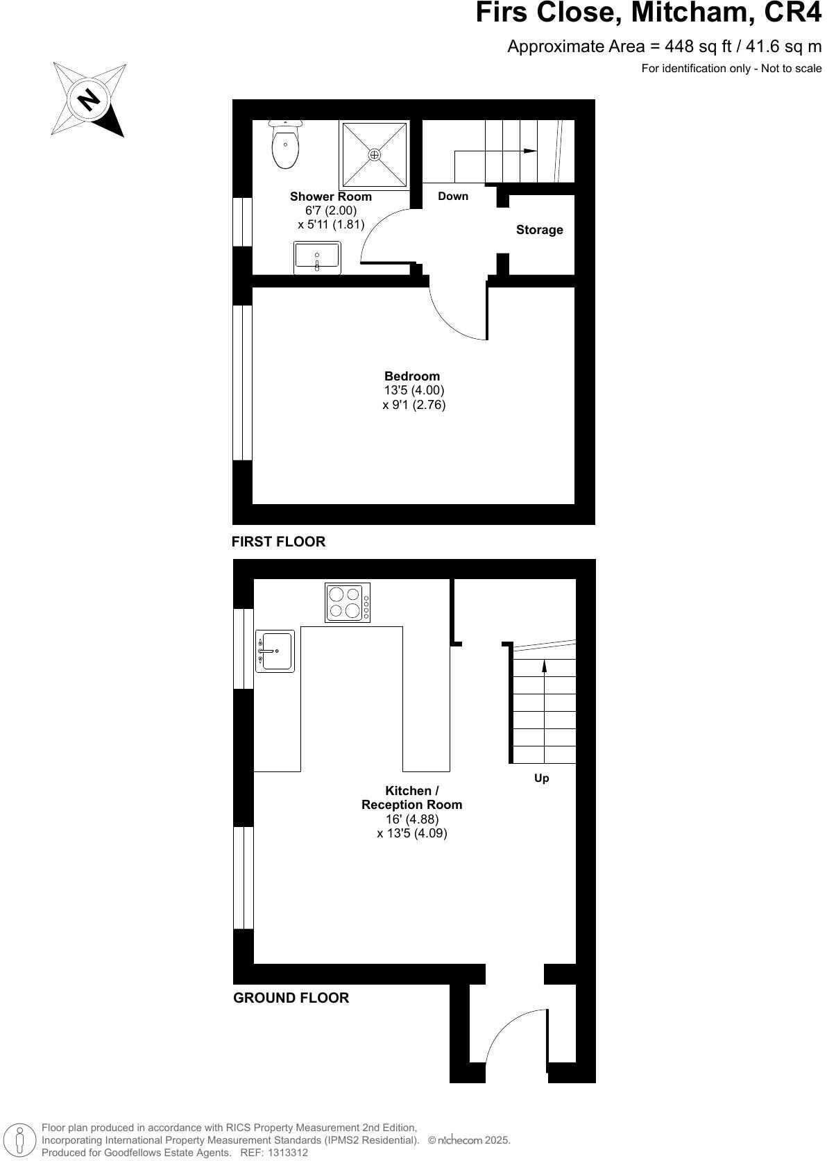
**Key Features:**
- Recently renovated one-bedroom semi-detached house
- Open-plan kitchen/reception area, bright and spacious
- Generous double bedroom with integrated storage
- Modern three-piece shower room and additional loft storage
- Allocated off-street parking and access to communal gardens
- Located 0.3 miles from Mitcham Eastfields Station, with direct routes to Central London
- Leasehold with 84 years remaining, service charge of £1,200 pa, ground rent of £95 pa
- Close proximity to local amenities and excellent schools
This charming one-bedroom house in a serene cul-de-sac offers an ideal retreat while remaining close to essential amenities. The modern open-plan design seamlessly integrates the kitchen and living area, providing a warm and inviting space that's perfect for entertaining or unwinding. The sizeable double bedroom includes smart storage solutions, while the sleek shower room adds a contemporary touch to this lovely home.
Located just a short walk from Mitcham Eastfields Station, this property is perfect for commuters seeking quick access to Central London, yet it retains a peaceful vibe with lovely communal gardens. Though the leasehold has 84 years remaining, any savvy buyer may consider this a great opportunity to invest in a well-maintained property in a rapidly developing area. Arrange a viewing soon, as this appealing home won’t last long on the market!
1 bedroom terraced house for sale in Firs Close, Mitcham, CR4 — £260,000 • 1 bed • 1 bath • 485 ft²
1 bedroom maisonette for sale in Worthington Close, Mitcham, CR4 — £250,000 • 1 bed • 1 bath • 432 ft²
2 bedroom terraced house for sale in Proctor Close, Mitcham, CR4 — £485,000 • 2 bed • 1 bath • 668 ft²
1 bedroom apartment for sale in Firs Close, Mitcham, CR4 — £225,000 • 1 bed • 1 bath • 479 ft²
1 bedroom semi-detached house for sale in Spring Grove, Mitcham, CR4 — £325,000 • 1 bed • 1 bath • 451 ft²
2 bedroom semi-detached house for sale in Parchment Close, Mitcham, CR4 — £475,000 • 2 bed • 2 bath • 880 ft²


































