**Standout Features:**
- Modern, three-bedroom semi-detached home
- Open plan kitchen/dining area
- Spacious main bedroom suite with en-suite
- Beautifully landscaped rear garden
- Driveway parking available
- Chain-free sale for easier transaction
- Located in the desirable Gilden Park development
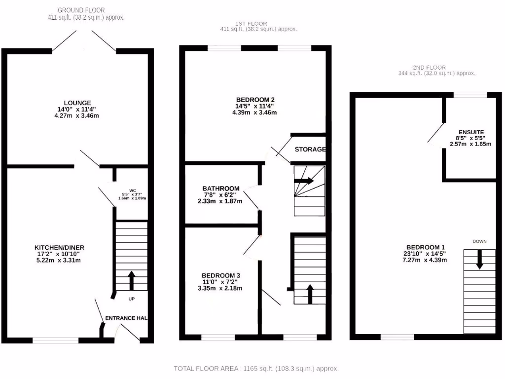
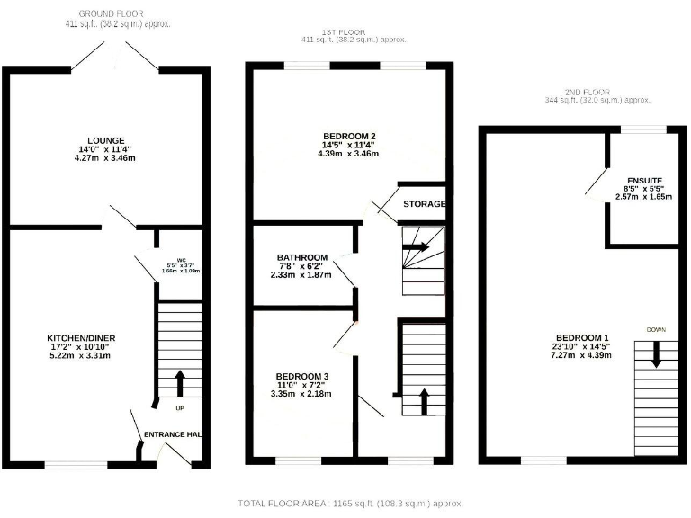
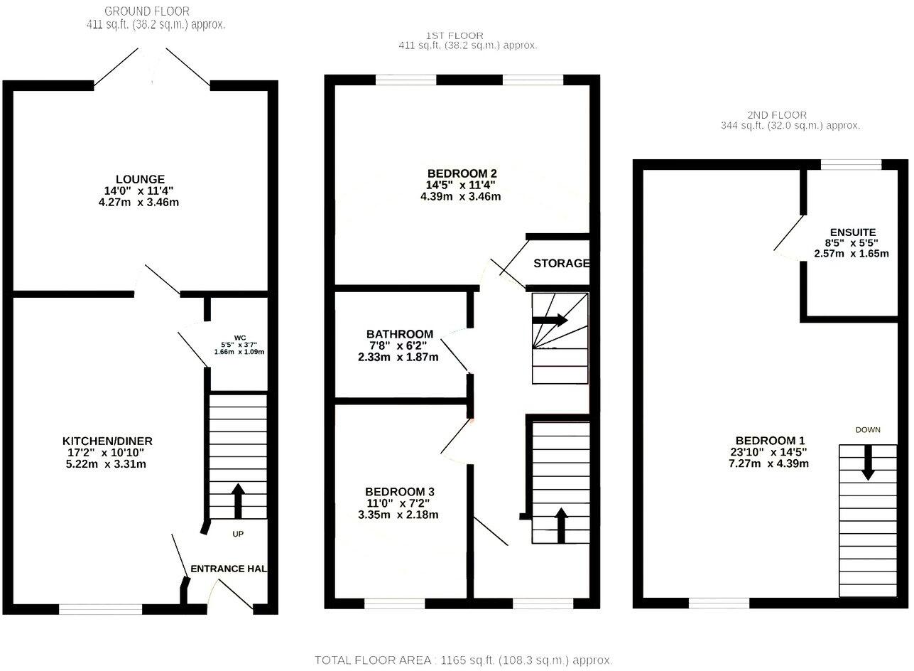
This immaculate three-bedroom semi-detached home offers a blend of contemporary design and ample family space with 1,165 sq ft of floor area. The stylish open-plan kitchen and dining area flow into a well-lit living room, featuring sliding doors that open to a stunning landscaped garden—perfect for relaxation and entertaining. An impressive main bedroom suite with an en-suite shower, along with two additional bedrooms and a family bathroom, creates an ideal family layout.
The property is strategically located just minutes from junction 7a of the M11, providing excellent commuter links to London, Stansted Airport, and beyond. For families, there are various schooling options nearby, including both state-funded and independent schools. Enjoy the conveniences of Old Harlow’s shops, cafes, and recreational amenities. Plus, this home is presented with no onward chain, making it an attractive option for buyers seeking a seamless transition. Don’t miss out on this rare opportunity to secure a modern family home in a stable, affluent neighborhood!
4 bedroom semi-detached house for sale in Old Oak Way, Harlow, Essex, CM17 — £475,000 • 4 bed • 2 bath • 1108 ft²
4 bedroom semi-detached house for sale in Wagtail Crescent, Harlow, Essex, CM17 — £475,000 • 4 bed • 1 bath • 1102 ft²
3 bedroom semi-detached house for sale in Plumtree Drive, Harlow, CM17 — £425,000 • 3 bed • 2 bath • 849 ft²
3 bedroom end of terrace house for sale in Dunnock Road, Harlow, Essex, CM17 — £425,000 • 3 bed • 2 bath • 779 ft²
3 bedroom semi-detached house for sale in Sandpiper Road, Old Harlow, CM17 — £425,000 • 3 bed • 2 bath • 831 ft²
2 bedroom end of terrace house for sale in Brambling Crescent, Gilden Park, CM17 — £375,000 • 2 bed • 1 bath • 625 ft²














































































