**Standout Features:**
- Charming semi-detached family home in a well-regarded residential area
- Spacious family lounge and dining area with abundant natural light
- Well-appointed kitchen/diner with renovation potential
- Three comfortable double bedrooms; versatile enough for various lifestyle needs
- Generous rear garden with multiple patio areas and privacy
- Close to local schools and excellent commuter links
- Freehold property, chain-free sale
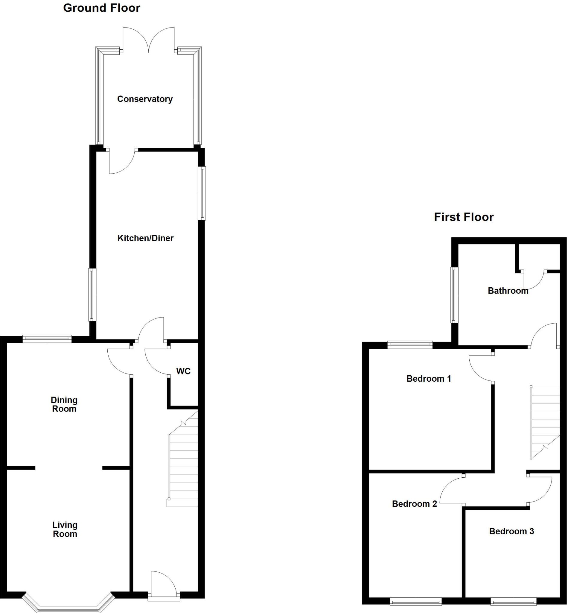
This charming semi-detached home on Station Road, Polesworth, effortlessly combines character and space, making it an excellent choice for families or first-time buyers seeking room to grow. The welcoming entrance leads to a light-filled lounge and adjoining dining area, perfect for relaxation or entertaining. An adjoining kitchen/diner offers the potential for future modernization, while a delightful conservatory provides a sun-drenched spot overlooking the expansive rear garden.
Upstairs, discover three well-proportioned double bedrooms, each suitable for family life, home offices, or hobbies, complemented by a well-sized family bathroom that invites enhancement. The generous garden space is ideal for outdoor living and is family-friendly, bordered by secure fencing for added peace of mind.
Located close to good local schooling and transport links, this home is poised for convenient living in a desirable suburban community. With no onward chain, this property presents a unique opportunity to make it your own. Don't miss out on this blend of charm and functionality—schedule a viewing today!
3 bedroom semi-detached house for sale in Common Lane, Polesworth, B78 — £325,000 • 3 bed • 1 bath • 1113 ft²
3 bedroom end of terrace house for sale in Chaytor Road, Polesworth, B78 — £245,000 • 3 bed • 1 bath • 767 ft²
3 bedroom semi-detached house for sale in Nethersole Street, Polesworth, Tamworth, B78 — £250,000 • 3 bed • 1 bath • 1149 ft²
3 bedroom semi-detached house for sale in Grinham Avenue, Polesworth, B78 — £269,500 • 3 bed • 3 bath • 934 ft²
2 bedroom semi-detached house for sale in Kiln Way, Polesworth, B78 — £180,000 • 2 bed • 1 bath • 765 ft²
3 bedroom town house for sale in Grinham Avenue, Polesworth, B78 — £267,500 • 3 bed • 2 bath • 1098 ft²






























































































