Spacious period house two miles from Llangrannog beach, large garden and garage.
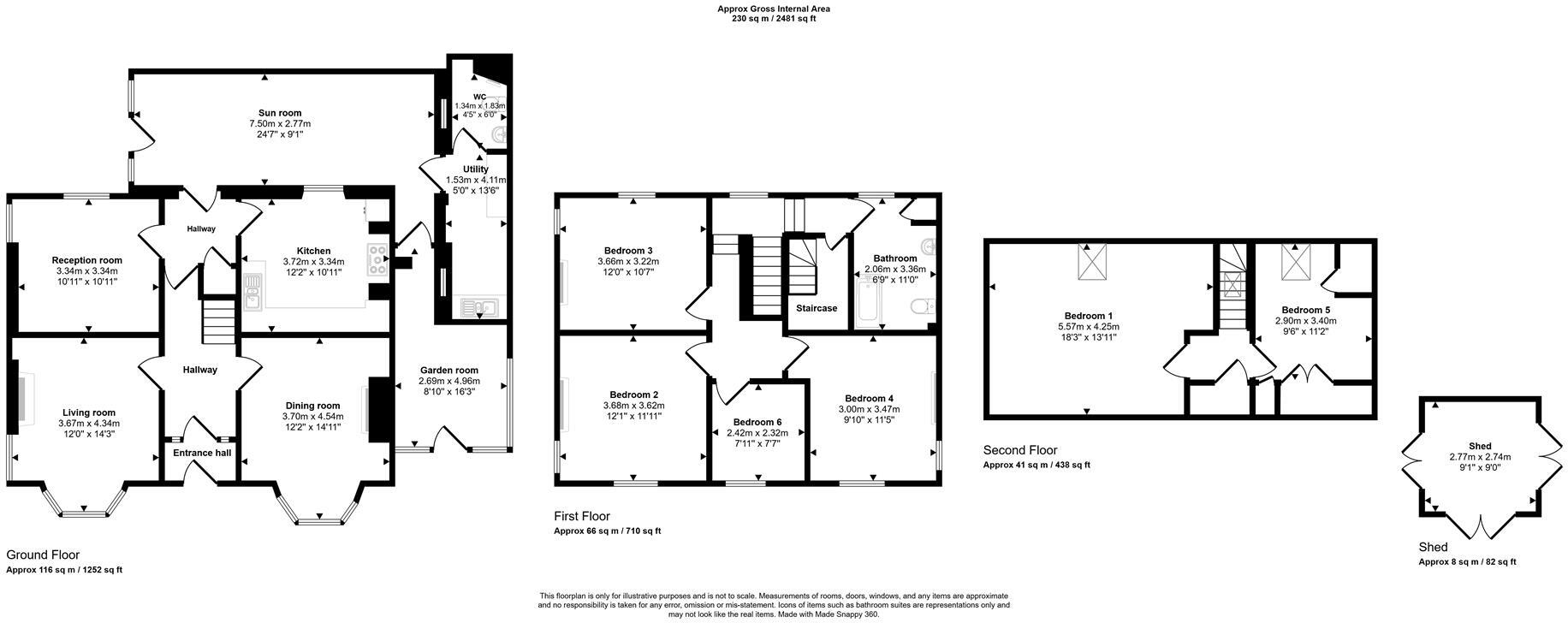
Six bedrooms across three storeys, flexible family accommodation
Bronhawen is a large, six-bedroom Victorian detached house set on a generous plot in the quiet village of Pontgarreg, just two miles from Llangrannog beach. The house keeps many character features — bay windows, original patterned hall tiles and distinctive fireplaces — and offers flexible living across three reception rooms plus a conservatory and garden room, ideal for family life and entertaining.
The grounds are a standout: an enclosed, landscaped front garden with mature shrubs, a gravelled low‑maintenance area, a summer house and a paved seating area. Practical benefits include a tarmac driveway with ample off‑road parking and a single garage. Broadband speeds are reported fast and there is low local crime, making the location practical despite its rural setting.
There are important things to know: the property carries an EPC rating of G, with stone walls believed to be uninsulated and heating supplied by an LPG boiler — improvements to thermal efficiency will be needed and running costs may be higher. Council tax is band F, and the wider area is classified as a remoter, ageing rural community with higher deprivation indicators.
For families seeking space near the coast, this house offers immediate accommodation and strong potential. Buyers willing to invest in insulation, heating upgrades and targeted refurbishment can significantly improve comfort, reduce bills and unlock long‑term value in a desirable coastal hinterland.
6 bedroom detached house for sale in Blaenporth, Cardigan, SA43 — £350,000 • 6 bed • 3 bath • 17222 ft²
3 bedroom detached house for sale in Pontgarreg, Nr Llangrannog, SA44 — £475,000 • 3 bed • 4 bath • 2340 ft²
3 bedroom bungalow for sale in Llangrannog, Llandysul, Llangrannog, Llandysul, SA44 — £375,000 • 3 bed • 1 bath • 2887 ft²
3 bedroom detached bungalow for sale in Pontgarreg, Llangrannog, Llandysul, SA44 — £375,000 • 3 bed • 1 bath • 1798 ft²
5 bedroom detached house for sale in Penbontrhydyfothau, New Quay, SA44 — £525,000 • 5 bed • 2 bath • 1637 ft²
4 bedroom detached house for sale in Llangrannog, Ceredigion, SA44 — £445,000 • 4 bed • 1 bath • 1486 ft²


















































































































































