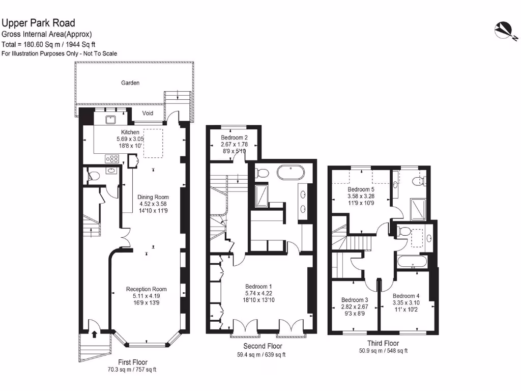
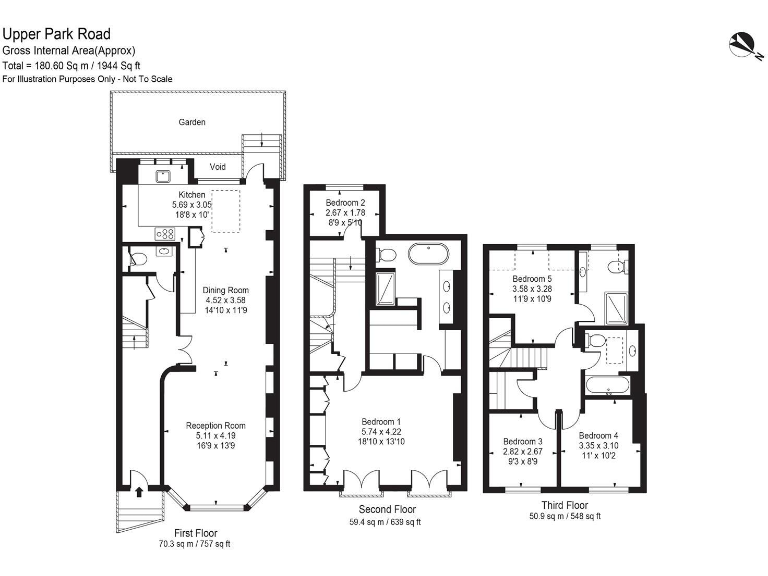
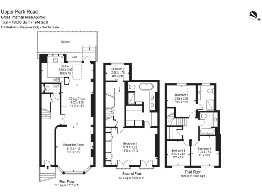
Light-filled multi-storey family flat with private south‑west garden in desirable Belsize Park.
Five double bedrooms across multiple floors, including principal suite with en‑suite
A bright, well-presented five-bedroom home arranged over multiple floors, offering generous living space and excellent indoor–outdoor flow. The first-floor open-plan kitchen/dining/reception is filled with natural light and opens directly onto a private south‑west facing garden, designed for entertaining and relaxed family use. The principal suite occupies the second floor and includes an en-suite shower room and a dressing area, with four further bedrooms and two bathrooms across the upper floors — suited to a growing family needing distinct bedroom space.
Practical comforts include underfloor heating served by a mains gas boiler, double glazing fitted after 2002, and a share of freehold tenure offered chain free. The property sits on a tree-lined street in Belsize Park, with fast broadband, excellent mobile signal, low crime and straightforward access to the Northern Line and local amenities, schools and parks — an attractive proposition for families seeking a central NW3 location.
Buyers should note the building’s age (circa 1900–1929) and solid brick walls with no known cavity insulation (assumed), which may mean higher heating costs and potential upgrade works if thermal improvements are desired. The multi-storey layout and any basement elements require owners comfortable with stairs and period maintenance responsibilities. Overall this is a spacious, light-filled family home with a private garden and strong local services, but some retrofit or ongoing upkeep should be budgeted for.
5 bedroom maisonette for sale in Upper Park Road, Belsize Park, London, NW3 — £2,850,000 • 5 bed • 3 bath • 1912 ft²
2 bedroom flat for sale in Fellows Road, Belsize Park, NW3 — £2,250,000 • 2 bed • 2 bath • 1723 ft²
4 bedroom flat for sale in Howitt Road, London, NW3 — £1,800,000 • 4 bed • 3 bath • 1571 ft²
3 bedroom flat for sale in Upper Park Road,
Belsize Park, NW3 — £1,600,000 • 3 bed • 2 bath • 1168 ft²
5 bedroom terraced house for sale in Lisburne Road, Hampstead, London, NW3 — £2,575,000 • 5 bed • 2 bath • 1894 ft²
7 bedroom semi-detached house for sale in Haverstock Hill, London, NW3 — £6,700,000 • 7 bed • 6 bath • 4659 ft²










































