Comfortable coastal apartment with garage, balcony and strong refurbishment potential.
- Bright first-floor apartment with plentiful natural light
- Private balcony overlooking communal gardens
- Two large double bedrooms with fitted wardrobes
- Modern fitted kitchen with breakfast bar and opening to reception
- Private garage included, rare for this location
- Service charge approx. £2,200pa; pets and holiday lets prohibited
- Electric storage heating; cavity walls likely lack insulation
- Chain free; potential to convert cloakroom into shower room
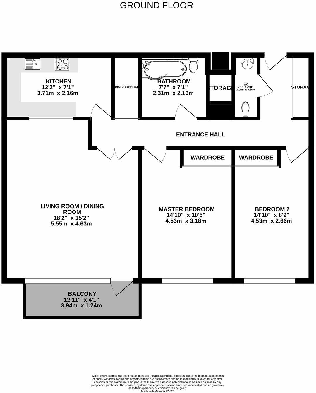
Light-filled first-floor apartment in Harbour Prospect offers comfortable, low-maintenance living moments from Poole Harbour and Sandbanks. The living/dining room opens onto a private balcony overlooking well-kept communal gardens, creating an easy indoor–outdoor flow for morning coffee or evening relaxation. Two large double bedrooms, built-in wardrobes and generous hallway storage make this a practical home for downsizers wanting space without stairs.
The kitchen is modern and well-equipped with a breakfast bar and a large opening to the reception — useful for informal dining and entertaining. A guest cloakroom off the entrance hall could be converted to a shower room, providing scope to add a second bathroom and increase convenience or resale potential. A private garage is included, a genuine rarity so close to the coast.
Practical considerations: the property uses electric storage heaters and the cavity walls are assumed to lack added insulation, which may affect running costs and will be an important factor for those conscious of energy use. The annual service charge is approximately £2,200 and pets or holiday lets are not permitted by the development rules, so the building is aimed at residents rather than buy-to-let or short-term rental investors.
Overall, this chain-free share-of-freehold apartment suits buyers seeking a comfortable, well-located retirement or downsizing home near award-winning beaches, with modest scope to improve layout and energy performance over time.
2 bedroom apartment for sale in Hurst Hill, Poole, Dorset, BH14 — £300,000 • 2 bed • 1 bath • 849 ft²
2 bedroom apartment for sale in Harbour Prospect, 32 Hurst Hill, Lilliput, BH14 — £310,000 • 2 bed • 2 bath • 822 ft²
2 bedroom apartment for sale in Constitution Hill Gardens, Lower Parkstone, Poole, Dorset, BH14 — £285,000 • 2 bed • 1 bath • 741 ft²
2 bedroom apartment for sale in Burton Road, Poole, Dorset, BH13 — £230,000 • 2 bed • 1 bath • 698 ft²
2 bedroom apartment for sale in Avalon, Lilliput, Poole, Dorset, BH14 — £425,000 • 2 bed • 2 bath • 1106 ft²
2 bedroom apartment for sale in Parkstone Road, Poole, Dorset, BH15 — £250,000 • 2 bed • 1 bath • 775 ft²


























































