Move-in ready three-bed near shops, schools and M6 access.
- Chain-free, newly renovated end-terrace
- Double-storey extension with large modern kitchen/diner
- Detached brick garage with rear access
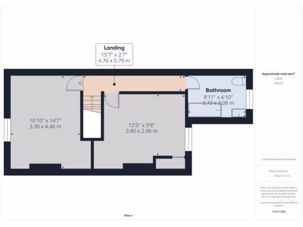
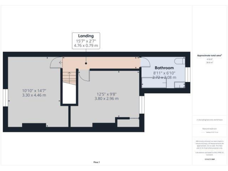
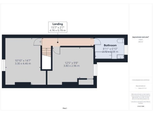
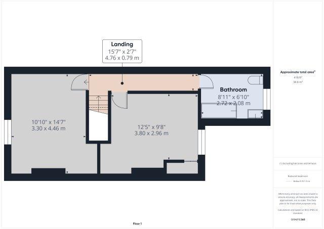
- Three bedrooms but overall floor area is small (≈388 sq ft)
- Single family bathroom located in extended rear section
- Leasehold with ~873 years remaining; nominal ground rent
- Victorian character details retained, high ceilings in main rooms
- Cavity walls as built with no added insulation (assumed)
This chain-free, newly refurbished end-terrace offers a compact three-bedroom layout in the heart of Standish village. A double-storey extension creates a generous, modern kitchen/diner with integrated appliances and French doors that open to a low-maintenance garden and a detached brick garage with rear access.
The house retains period character—Victorian brick facade and an exposed brick fireplace—alongside practical updates: new fittings throughout, mains gas central heating and double glazing. Its location is a strong selling point, minutes from Junction 27 (M6) and within easy walking distance of shops, eateries and several highly rated primary and secondary schools.
Important facts: the property is leasehold with around 873 years remaining and a nominal ground rent. Overall internal size is small (about 388 sq ft) and there is a single family bathroom, so buyers should expect compact rooms and limited internal living space. Cavity walls are original with no installed insulation (assumed).
This home suits first-time buyers or small families seeking a move-in-ready property in an affluent, low-crime neighbourhood with excellent transport links. It offers strong local amenities and school options, but buyers wanting larger living areas or multiple bathrooms should compare carefully before viewing.
3 bedroom semi-detached house for sale in Robin Hill Drive, Standish, Wigan, WN6 — £200,000 • 3 bed • 1 bath • 695 ft²
3 bedroom semi-detached house for sale in Robin Hill Drive, Standish, Wigan, WN6 — £190,000 • 3 bed • 1 bath • 689 ft²
2 bedroom terraced house for sale in Collingwood Street, Standish, WN6 0JL, WN6 — £149,950 • 2 bed • 1 bath • 763 ft²
2 bedroom terraced house for sale in Wakefield Crescent, Standish, WN6 0AU, WN6 — £159,995 • 2 bed • 1 bath • 971 ft²
2 bedroom end of terrace house for sale in Platt Lane, Standish, Wigan, WN1 — £130,000 • 2 bed • 1 bath • 908 ft²
3 bedroom semi-detached house for sale in Pepper Lane, Standish, WN6 0PY, WN6 — £219,950 • 3 bed • 1 bath • 727 ft²










































































