Three-bedroom home with parking and enclosed garden, five-minute walk to Metrolink and local schools..
Three bedrooms; master bedroom includes en suite
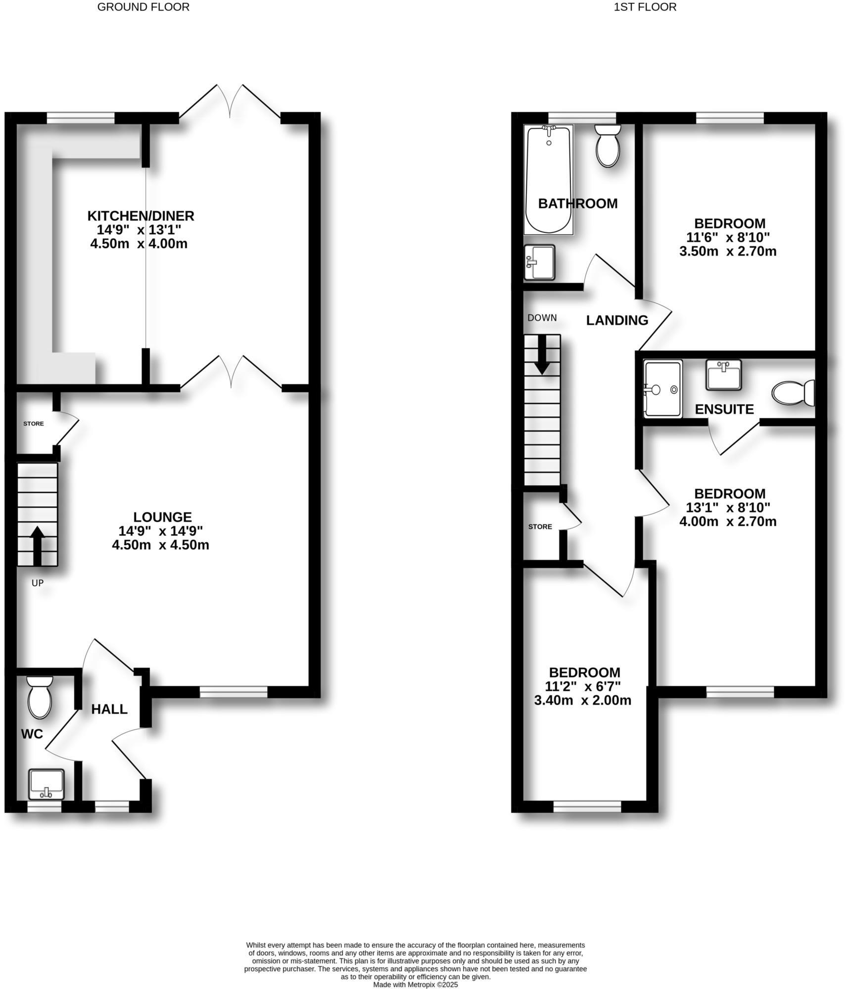
This three-bedroom mid-terrace in Chadderton offers straightforward family living across well-proportioned rooms. The ground floor features a lounge, dining kitchen with integrated hob and dishwasher space, and a useful downstairs WC — practical for everyday life. Upstairs are three bedrooms, including a master with en suite, plus a family bathroom and a fully boarded loft for extra storage.
Outside there are two designated off-street parking bays to the front and an enclosed rear garden with paved patio, lawn and shed — a low-maintenance outdoor space for children or pets. The house benefits from UPVC double glazing, gas central heating and fast local broadband; a Metrolink tram stop is about a five-minute walk away, with good road links nearby.
Important points to note: the property is leasehold (long lease remaining of 981 years) with a small ground rent of £100. The wider area scores as very deprived, which may affect longer-term resale prospects despite very low local crime. Services, fixtures and fittings have not been tested and should be independently checked by any buyer.
Overall, this property suits families seeking a ready-to-move-into three-bedroom home with practical outdoor space, parking and good transport links, while buyers should factor local area considerations and carry out their own checks on services and appliances.
3 bedroom semi-detached house for sale in Hunt Lane, Chadderton, OL9 — £325,000 • 3 bed • 2 bath • 1238 ft²
3 bedroom semi-detached house for sale in Higher House Close, Chadderton, Oldham, OL9 — £250,000 • 3 bed • 1 bath • 752 ft²
3 bedroom terraced house for sale in Denton Lane, Chadderton, Oldham, OL9 — £180,000 • 3 bed • 1 bath • 711 ft²
3 bedroom terraced house for sale in Taunton Road, Chadderton, OL9 — £175,000 • 3 bed • 1 bath • 818 ft²
3 bedroom town house for sale in 10 Falcon Drive, Chadderton, Oldham, OL9 0EY, OL9 — £200,000 • 3 bed • 1 bath • 778 ft²
3 bedroom terraced house for sale in Cromarty Avenue, Chadderton, Oldham, OL9 — £210,000 • 3 bed • 1 bath






























































































