Well-connected, low-maintenance home near nature and rail links.
Open-plan living and dining with Juliet balcony for good natural light
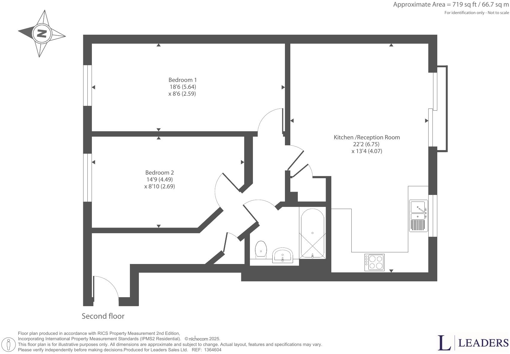
Step inside this bright two-bedroom apartment arranged around an open-plan living and dining space. The sitting area opens to a Juliet balcony, bringing light into the contemporary interior and complementing a fully integrated kitchen designed for everyday living and simple entertaining.
Both bedrooms are genuine doubles positioned for privacy, and the family bathroom has been tastefully upgraded with a waterfall shower and fitted storage. Allocated off-street parking and well-kept communal grounds add low-maintenance outdoor space and convenience.
Located in Dunton Green, the development sits close to Sevenoaks Nature Reserve and is within walking distance of a mainline station with direct London links. The building offers communal amenities including a refurbished gym and benefits from a very low local crime rate and an affluent neighbourhood.
Important practical points: this is a leasehold flat with 112 years remaining. Annual service charge and ground rent are around £1,800 and £320 respectively. Broadband speeds are average and there is no private garden — communal grounds only.
2 bedroom apartment for sale in Eden Road, Dunton Green, Sevenoaks, Kent, TN14 — £325,000 • 2 bed • 1 bath • 700 ft²
1 bedroom apartment for sale in Campion Square, Dunton Green, Sevenoaks, TN14 — £275,000 • 1 bed • 1 bath • 513 ft²
2 bedroom apartment for sale in Crabapple Road, Tonbridge, Kent, TN9 — £290,000 • 2 bed • 1 bath • 642 ft²
2 bedroom apartment for sale in Berwick Way, Sevenoaks, TN14 — £250,000 • 2 bed • 1 bath • 581 ft²
2 bedroom flat for sale in Swinton Court, Mere Road, Dunton Green, Sevenoaks, Kent, TN14 — £325,000 • 2 bed • 2 bath • 743 ft²
2 bedroom apartment for sale in Morewood Close, Sevenoaks, TN13 — £399,995 • 2 bed • 2 bath • 743 ft²


































