Chain-free three-bedroom home with parking and garden in peaceful Kingsclere.
Village location with desirable local schools
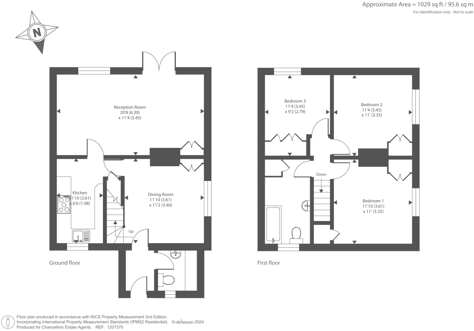
Set in the desirable village of Kingsclere, this detached three-bedroom cottage offers a blend of period character and modern updates across an average-sized footprint. The property is chain-free and freehold, with off-street parking for three vehicles and a private garden, making it a practical choice for families seeking a village lifestyle.
Inside, the layout is traditional with separate living and dining rooms, a modern kitchen, utility and cloakroom, and a family bathroom serving three bedrooms. Double glazing was installed after 2002 and the gas-fired boiler with radiators provides mains-heated comfort. The house sits on a decent plot and has scope for modest updating or improvement, particularly to increase thermal efficiency and modern connectivity.
Buyers should note material considerations: the property’s solid brick construction is likely uninsulated and will benefit from insulation works; broadband speeds are slow; council tax is above average; and there is a single family bathroom. These points affect running costs and may require investment to modernise for homeworking or improved energy performance.
For families, the location is a major draw — good-rated primary and secondary schools are close by, and low local crime levels add reassurance. The house offers immediate occupation with potential to personalise and increase value through insulation, connectivity upgrades, and sympathetic refurbishment.
3 bedroom detached house for sale in The Dell, Newbury, RG20 — £650,000 • 3 bed • 1 bath • 1727 ft²
3 bedroom semi-detached house for sale in King John Road, Kingsclere, RG20 — £400,000 • 3 bed • 1 bath • 902 ft²
3 bedroom semi-detached house for sale in Mead Close, Peasemore, Newbury, RG20 7JE, RG20 — £450,000 • 3 bed • 3 bath • 1034 ft²
3 bedroom end of terrace house for sale in The Old Bakery, Kingsclere, RG20 — £364,950 • 3 bed • 2 bath • 997 ft²
3 bedroom semi-detached house for sale in Coppice Road, Kingsclere, RG20 5RT, RG20 — £475,000 • 3 bed • 1 bath • 1194 ft²
3 bedroom terraced house for sale in Swan Street, Newbury, RG20 — £460,000 • 3 bed • 1 bath • 1070 ft²


























































