**Standout Features:**
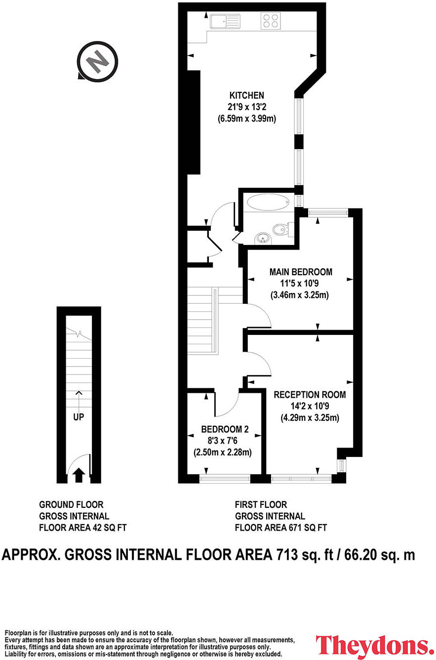
- Beautifully presented, 2-bedroom first-floor flat with private entrance
- Bay-fronted living area that fills with natural light
- Good-size kitchen/diner with integrated oven and hob
- Flexible second bedroom suitable as nursery or study
- Serene bathroom suite for relaxation
- Close proximity to shopping, parks, and transport links
- Share of freehold and a long lease of 998 years remaining
**Summary:**
This beautifully presented two-bedroom first-floor flat on Pretoria Road offers a perfect blend of comfort and convenience, making it an ideal home for first-time buyers or small families. With its own private entrance, this inviting flat features a bright, bay-fronted living area that’s perfect for unwinding after a busy day. The versatile second bedroom can easily transform into a nursery, home office, or guest room, accommodating your lifestyle needs.
The property boasts a spacious fitted kitchen/diner, complete with modern appliances, ideal for entertaining family and friends. It’s complemented by a serene bathroom for indulgent relaxation. With excellent transport links, you'll have easy access to the city along with an abundance of local amenities, including shops and eateries. Enjoy peaceful walks nearby at Hollow Ponds and Epping Forest, which further enrich your living experience.
While the home is located in a quiet area with low crime rates, prospective buyers should be aware that the property is on the upper level, which may not suit everyone. Additionally, potential renovations or updates can be made to enhance value and personal style. This delightful flat, characterized by ample light and a strong sense of community, will not stay on the market long. Don’t miss your chance to make it your own!
1 bedroom flat for sale in Pretoria Road, Leytonstone, London, E11 — £350,000 • 1 bed • 1 bath • 533 ft²
2 bedroom flat for sale in Hainault Road, Upper Leytonstone, E11 — £400,000 • 2 bed • 1 bath • 742 ft²
2 bedroom flat for sale in Westdown Road, London, E15 — £450,000 • 2 bed • 1 bath • 605 ft²
2 bedroom maisonette for sale in St. Annes Road, Leytonstone, E11 — £475,000 • 2 bed • 1 bath • 673 ft²
2 bedroom ground floor flat for sale in Oakdale Road, Leytonstone, E11 — £450,000 • 2 bed • 1 bath • 480 ft²
2 bedroom flat for sale in Mornington Road, Leytonstone, E11 — £485,000 • 2 bed • 1 bath • 829 ft²






































































