**Standout Features:**
- Stunning views over Cardiff Bay
- Modern two-bedroom apartment with stylish finishes
- Waterside balcony for outdoor enjoyment
- Allocated and visitor parking available
- Access to luxury amenities including a swimming pool, gyms, and 24-hour concierge
**Potential Concerns:**
- Leasehold tenure
- Above-average service charge (£2,090)
- Located in an area classified as very deprived
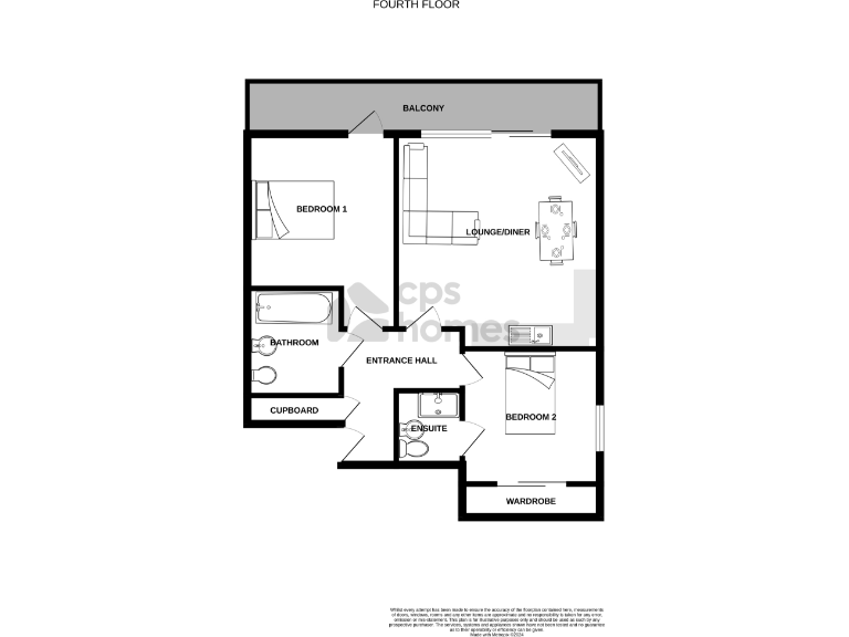
Nestled within a coveted waterside development, this stunning two-bedroom apartment offers breathtaking views across Cardiff Bay. Accessed via lift to the fourth floor, the bright open-plan living area seamlessly integrates the kitchen, lounge, and dining space, all leading to a private balcony where you can soak in the beauty of your surroundings. The master bedroom features fitted wardrobes and an en suite shower room, while a second generously sized bedroom shares an immaculate bathroom with modern fixtures.
Residents benefit from excellent amenities, including leisure facilities, a swimming pool, and a dedicated concierge team. An allocated parking space, along with visitor parking, enhances the convenience of living in this vibrant cosmopolitan neighborhood, perfect for students and commuters alike. With a competitive price of £199,950, this apartment represents an exclusive opportunity to enjoy upscale urban living in a highly desirable location. Act fast to secure this amazing find before it's gone!
2 bedroom flat for sale in Douglas House, Ferry Court, Cardiff, CF11 — £229,950 • 2 bed • 2 bath • 538 ft²
2 bedroom apartment for sale in Ferry Court, Cardiff Bay, CF11 — £235,000 • 2 bed • 2 bath • 883 ft²
2 bedroom apartment for sale in Ferry Court, Cardiff Bay, CF11 — £199,950 • 2 bed • 2 bath • 947 ft²
2 bedroom penthouse for sale in Ferry Court, Cardiff Bay, CF11 — £250,000 • 2 bed • 2 bath • 722 ft²
1 bedroom apartment for sale in Watkiss Way, Cardiff Bay, CF11 — £210,000 • 1 bed • 1 bath • 625 ft²
2 bedroom apartment for sale in Henke Court, Cardiff Bay, CF10 — £265,000 • 2 bed • 2 bath


























































































































