Ideal first-step buy with garage, gardens and efficient living space.
Corner plot with larger-than-average front and rear gardens
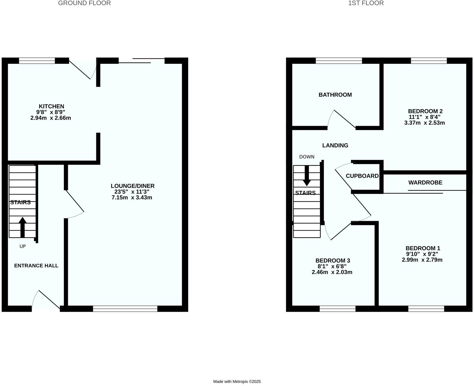
Set on a desirable corner plot in Eggbuckland, this tidy three-bedroom end-terrace offers surprisingly generous front and rear gardens for the street and a single garage in a nearby block. The ground-floor lounge/diner is relatively roomy for the overall footprint, while the three upstairs bedrooms and bathroom provide an efficient family layout. Broadband speeds are fast, crime levels are very low, and there is no flood risk.
The house is offered freehold and presented in immaculate condition internally, making it move-in ready for a first-time buyer or landlord wanting minimal immediate work. Built in the 1980s, it benefits from double glazing and gas central heating via boiler and radiators; walls are cavity and assumed insulated. Council tax is cheap, and local primary schools have Good Ofsted ratings.
Drawbacks to note: the overall internal size is small (about 584 sq ft) and the bedrooms are modest, with a single family bathroom upstairs — this limits longer-term flexibility for some growing families. The wider area shows mixed socio-economic indicators (aspiring urban households within a broadly blue-collar setting), which may affect resale appetite in different buyer segments. Externally the property appears sound but could benefit from minor cosmetic updating to maximise value.
For buyers seeking a compact, low-maintenance starter home with garden space and parking, this property presents a strong, straightforward opportunity. Investors should note the efficient layout and nearby amenities, but factor the small total floor area and single bathroom into rental yield and tenant appeal assumptions.
3 bedroom semi-detached house for sale in Erlstoke Close, Eggbuckland, Plymouth, PL6 — £275,000 • 3 bed • 1 bath • 359 ft²
3 bedroom detached house for sale in Culver Close, Plymouth, PL6 — £300,000 • 3 bed • 1 bath • 667 ft²
3 bedroom terraced house for sale in Greystoke Avenue, Plymouth, PL6 — £220,000 • 3 bed • 1 bath • 874 ft²
3 bedroom terraced house for sale in Cockington Walk, Eggbuckland, PL6 — £230,000 • 3 bed • 1 bath • 789 ft²
3 bedroom terraced house for sale in Warwick Orchard Close, Plymouth, PL5 — £190,000 • 3 bed • 1 bath • 628 ft²
3 bedroom terraced house for sale in Bradford Close, Plymouth, PL6 — £230,000 • 3 bed • 1 bath • 758 ft²






















































































