Allocated off-street parking space included
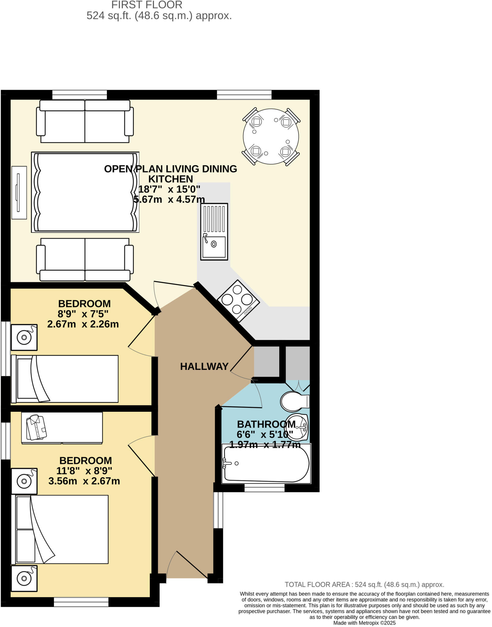
Open-plan living, dining and integrated kitchen
Two bedrooms within 524 sq ft total area
Leasehold with ~72 years remaining — lender risk
Electric storage heating (no gas central heating)
Modest ground rent of £75 per year
Close to city centre and Cumberland Infirmary
Local area: higher crime and area deprivation
This well-presented first-floor apartment offers a compact, modern living space ideal for a first-time buyer or buy-to-let investor. The open-plan living/dining/kitchen creates a feeling of space across the home's 524 sq ft, and two bedrooms plus a bathroom make the layout practical for single occupants, couples or small sharers.
Practical benefits include an allocated off-street parking space, close proximity to the city centre and Cumberland Infirmary, and nearby riverside walks for quiet outdoor time. Broadband and mobile reception are reported as good, and council tax is described as cheap — useful for both owner-occupiers and rental yield calculations.
Buyers should note material constraints: the property is leasehold with approximately 72 years remaining, which may restrict mortgage options and could deter some lenders. Heating is by electric storage heaters and there is a modest ground rent of £75. The local area is described as deprived with higher crime levels, which will affect desirability for some purchasers and lettings.
Overall this is a straightforward, low-maintenance modern apartment in a convenient city location. It suits a cash buyer or an investor comfortable managing lease considerations and marketability in a tougher local letting environment.















































