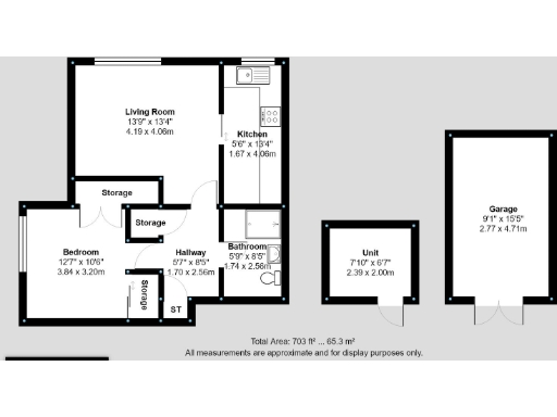
**Standout Features:**
- Spacious one-bedroom apartment (593 sq. ft.)
- Large reception room ideal for living and dining
- Well-equipped kitchen with ample storage
- Access to well-maintained communal gardens
- Private garage plus off-street parking
- Prime Wandsworth location near transport links and amenities
**Concerns:**
- Cavity walls may require insulation
- High local crime rate
- Potential structural concerns should be assessed
Discover the charm of this spacious one-bedroom apartment in Wandsworth, perfect for first-time buyers, downsizers, or investors! Boasting a generous 593 sq. ft., this well-maintained home features a large reception room that flows seamlessly into a well-equipped kitchen. The double bedroom is comfortable, and the neat bathroom adds practicality to the layout. With access to beautifully maintained communal gardens and the rarity of your own garage, this property offers both convenience and tranquility.
Situated in a vibrant urban area, you'll benefit from a variety of local shops, cafes, and restaurants, as well as excellent transport links via Wandsworth Common station. While the property's location presents some concerns due to a high crime rate and potential structural issues—such as uninsulated cavity walls—the vast living space and potential for future renovations provide great opportunities for those looking to make it their own. Don't miss out on this exclusive opportunity in a highly desirable spot—schedule your viewing today!
2 bedroom apartment for sale in Heathfield Road, SW18 — £475,000 • 2 bed • 1 bath • 782 ft²
1 bedroom apartment for sale in Waverton Road, London, SW18 — £325,000 • 1 bed • 1 bath • 505 ft²
1 bedroom flat for sale in Fitzhugh Grove, Battersea, London, SW18 — £300,000 • 1 bed • 1 bath • 507 ft²
1 bedroom apartment for sale in Gowrie Road, London, SW11 — £300,000 • 1 bed • 1 bath • 508 ft²
1 bedroom apartment for sale in Garratt Lane, London, SW18 — £250,000 • 1 bed • 1 bath • 411 ft²
1 bedroom apartment for sale in John Archer Way, London, SW18 — £400,000 • 1 bed • 1 bath • 456 ft²


































































































