Spacious family home with studio and guest annex near top schools.
Over 1/3 acre rear garden with terrace and mature trees
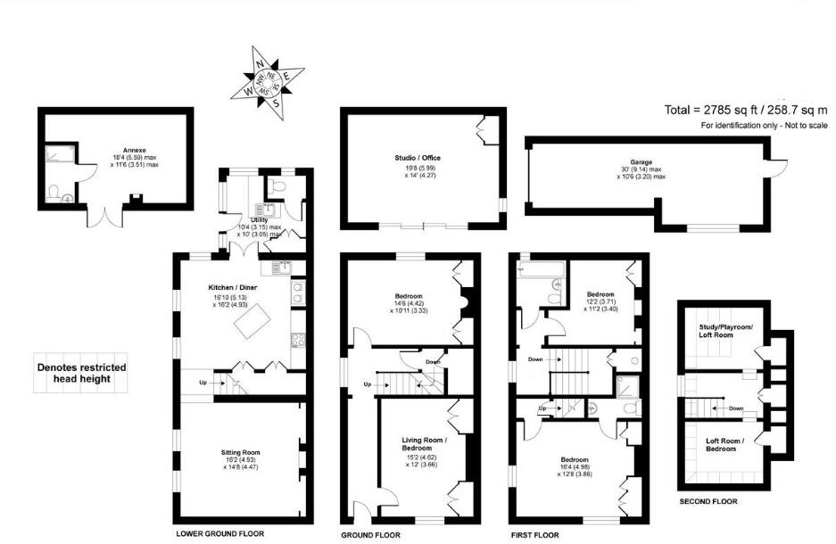
This substantial early C19 former carriage-maker’s house occupies over a third of an acre in Lexden, offering versatile family living across four storeys. The layout includes a generous kitchen/dining room, two reception rooms (one with wood burner), four bedrooms with one en-suite, plus a loft bedroom with study/play area. A detached studio/office and a recently converted outbuilding with shower and wood burner provide excellent home‑working and guest facilities.
The location suits families: a cluster of highly rated independent and state schools is within walking distance, Colchester town centre and stations are close by for commuter links to London, and nearby green spaces and coastal towns are easily reached. The property benefits from driveway parking for three cars, a garage, fast broadband and low flood risk.
Important practical notes: the house is Grade II listed, which will restrict alterations and may complicate major works or extensions. Council tax is described as expensive. Prospective buyers should factor in listed‑building consent needs and any conservation-related maintenance costs when considering renovation or modernisation.
Overall, this property will appeal to buyers seeking a characterful, generous family home with separate outbuildings for work or guests, who are comfortable working within listed‑building constraints and higher running costs.
4 bedroom semi-detached house for sale in Lexden Road, Colchester, CO3 — £1,350,000 • 4 bed • 3 bath • 4000 ft²
5 bedroom detached house for sale in Park Road, Lexden, Colchester, CO3 — £1,600,000 • 5 bed • 4 bath • 4000 ft²
6 bedroom detached house for sale in Hurnard Drive, Lexden, Colchester, CO3 — £1,250,000 • 6 bed • 3 bath • 3770 ft²
4 bedroom detached house for sale in Lexden Road, Colchester, CO3 — £800,000 • 4 bed • 2 bath • 2563 ft²
5 bedroom detached house for sale in St Clare Road, Lexden, Colchester, Essex, CO3 — £1,550,000 • 5 bed • 3 bath • 3170 ft²
5 bedroom semi-detached house for sale in The Avenue, Lexden, Colchester, Essex, CO3 — £1,350,000 • 5 bed • 3 bath • 4500 ft²














































































































































































