Affordable, chain‑free 2‑bed end terrace with garage and garden — ideal first home or investment..
Chain free and ready for prompt move-in
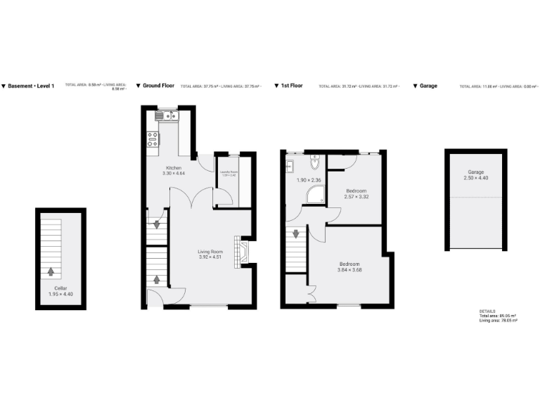
Two double bedrooms and large lounge, about 781 sq ft
Private driveway, single garage and front/rear gardens
Good transport links, fast broadband, excellent mobile signal
EPC D — energy efficiency below modern standards
Located in a very deprived area with higher crime rates
Tenure not specified — buyer should verify title and costs
Council tax band A — very low annual tax liability
Bright, chain‑free 2-bedroom end terrace in Tingley offering honest starter-home value. The house presents a large lounge, a spacious kitchen‑diner, utility room, and two double bedrooms across approximately 781 sq ft — practical living space for first-time buyers or buy‑to‑let investors.
Outside there is a private driveway, single garage and front and rear gardens with a patio — useful for parking, storage and outdoor entertaining. The property benefits from fast broadband and excellent mobile signal, plus good local transport links that help commuting to nearby centres.
Buyers should note a few material considerations: the property sits in a very deprived area with higher-than-average crime levels, EPC rating D, and the tenure is not specified. While the home appears well presented internally, its mid‑20th‑century construction and filled cavity walls mean prospective buyers should budget for routine maintenance and check services before committing.
This house suits first‑time buyers wanting an affordable entry into homeownership and investors seeking rental yield in a market with strong tenant demand. Its chain‑free status and practical layout make it straightforward to move into or let quickly, but location-related risks and the unspecified tenure should be clarified early in the buying process.
2 bedroom semi-detached house for sale in Greenwood Road, Tingley, Wakefield, West Yorkshire, WF3 — £185,000 • 2 bed • 1 bath • 874 ft²
2 bedroom terraced house for sale in Low Street, Tingley, Wakefield, WF3 — £155,000 • 2 bed • 1 bath • 471 ft²
2 bedroom end of terrace house for sale in Westerton Road, Tingley, Wakefield, WF3 1AE, WF3 — £170,000 • 2 bed • 1 bath • 550 ft²
2 bedroom semi-detached house for sale in The Crescent, Tingley, Wakefield, WF3 — £170,000 • 2 bed • 2 bath • 826 ft²
2 bedroom semi-detached house for sale in Scarborough Lane, Tingley, Wakefield, West Yorkshire, WF3 — £200,000 • 2 bed • 1 bath • 603 ft²
3 bedroom semi-detached house for sale in Highfield, Tingley, Wakefield, West Yorkshire, WF3 — £240,000 • 3 bed • 1 bath • 867 ft²


























































































