OX13 5JJ - Land for sale in Eaton Road, Appleton, OX13

View on Property Piper

Land for sale in Eaton Road, Appleton, OX13

Summary - 91 Eaton Road, Appleton, ABINGDON OX13 5JJ

1 bed 1 bath Land

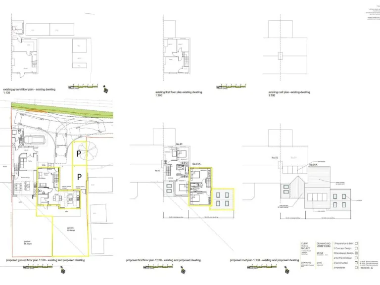
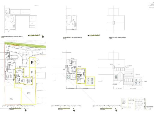
Detailed planning permission for a two-bedroom house (P24/V2605/FUL)
A rare building plot discreetly positioned off Eaton Road with detailed planning permission to create a two-bedroom, two-storey home. The consent (Vale of White Horse P24/V2605/FUL) allows two parking spaces and a generous south-facing garden — a straightforward scheme ideal for a small household or buy-to-build investor.

The plot is freehold and located in a very affluent, low-crime Oxfordshire village with fast broadband and excellent mobile signal. Nearby primary and several well-regarded independent schools add family appeal; local amenities include a convenience store, bus stops and a post office. The plot adjoins 91 Eaton Road and is shown with illustrative drawings only.

Buyers should note this is land for development rather than a completed property: the purchase excludes construction, landscaping and associated build costs. Services, connections and build programme will need confirming by the purchaser; the vendor’s marketing drawings are for illustration only. This is a good opportunity for someone prepared to manage a local build to create a modern home in a sought-after village setting.

Property Details

Brochure Descriptions

Image Descriptions

Textual Property Features

Detected Visual Features

Nearby Schools

Nearest Bars And Restaurants

,,,,}

Nearest General Shops

,,}

Nearest Grocery shops

,,}

Nearest Supermarkets

,,}

Nearest Religious buildings

,,}

Nearest Medical buildings

,,,}

Nearest Leisure Facilities

,,,,}

Nearest Tourist attractions

,,}

Nearest Train stations

,,,,}

Nearest Bus stations and stops

,,,,}

Nearest Hotels

,,}

Tags

Local Market Stats

Meta

High Res Images

Compatible Images

Low res Images

Thumbnails

Raw Images