Bright open-plan living with transport and shops on your doorstep.
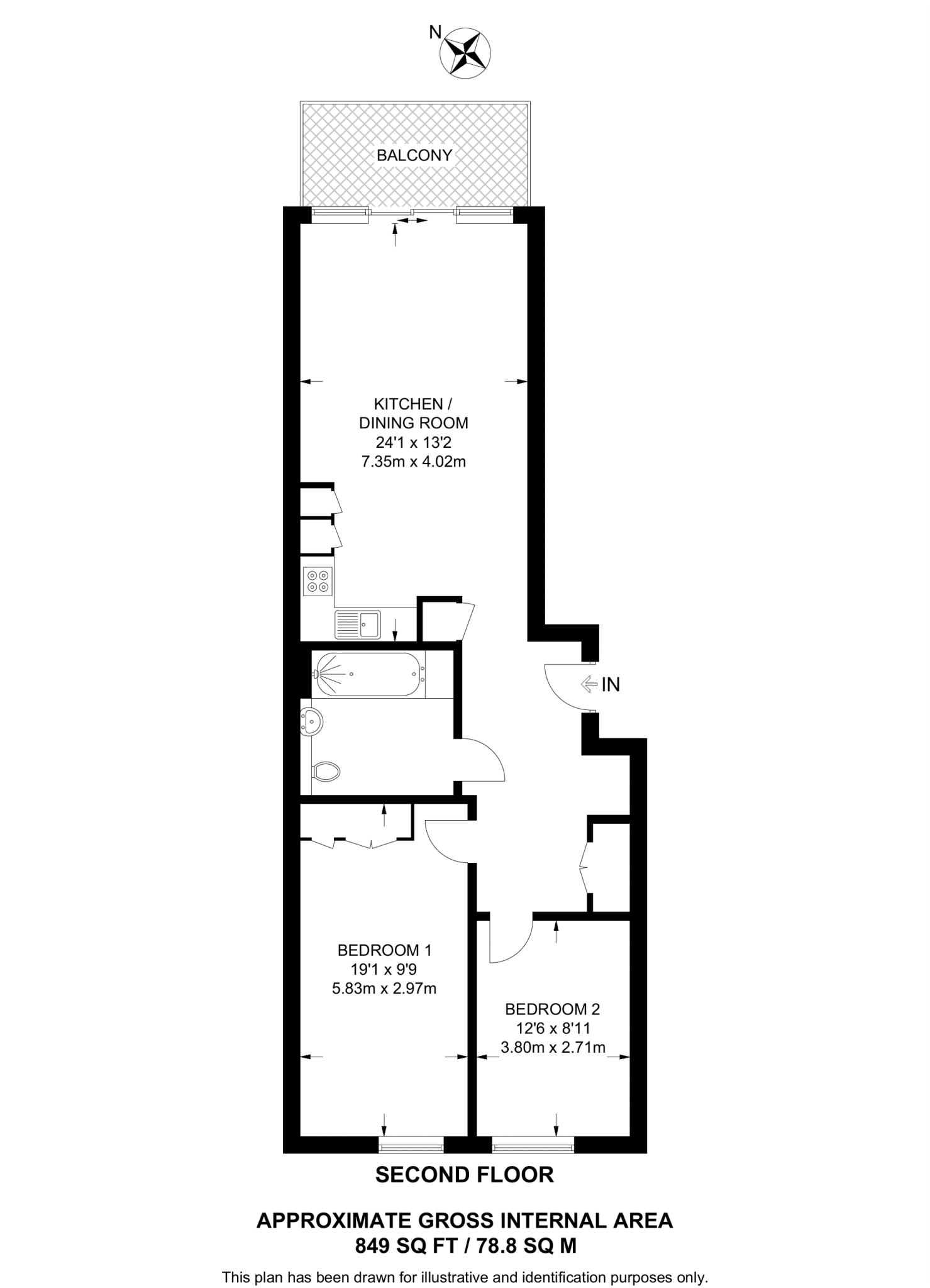
Second-floor two-bedroom flat with private balcony
This second-floor, two-bedroom flat offers generous living space (approx. 849 sqft) and a private balcony overlooking a busy Elephant and Castle street. The large reception room and open-plan kitchen create a light, flexible social space suited to modern living and entertaining. Both bedrooms are doubles, and the bathroom is sleek and up-to-date.
Practical strengths include a long lease (circa 240 years), very low flood risk and fast broadband with excellent mobile signal — useful for remote working. The building uses a community heating scheme and solid thermal performance in the walls, which can help with running costs. Local transport links, shops and a wide range of amenities are immediate and convenient.
Notable costs and considerations are the above-average service charge (£7,251) and a ground rent of £500 per year; factor these into monthly budgets. The surrounding area is classified as very deprived and crime is average, so neighbourhood safety and resale expectations should be weighed alongside the flat’s internal quality. The property is leasehold and may suit buyers comfortable with management charges and an urban, changing locality.
For a first-time buyer seeking space, strong transport connections and a move-in-ready flat with refurbishment potential, this offers a practical, well-specified home. Investors should note the service charge level and local deprivation when modelling returns.
2 bedroom flat for sale in Steedman Street, Elephant and Castle, London, SE17 — £500,000 • 2 bed • 1 bath • 732 ft²
2 bedroom flat for sale in Steedman Street, Elephant and Castle, SE17 — £550,000 • 2 bed • 1 bath • 720 ft²
2 bedroom flat for sale in Steedman Street, Elephant and Castle, London, SE17 — £559,000 • 2 bed • 1 bath • 722 ft²
2 bedroom flat for sale in Amelia Street, Elephant and Castle, London, SE17 — £550,000 • 2 bed • 2 bath • 782 ft²
2 bedroom flat for sale in St Gabriel Walk, Elephant and Castle, London, SE1 — £800,000 • 2 bed • 2 bath • 918 ft²
2 bedroom flat for sale in Walworth Road, Elephant and Castle, London, SE17 — £825,000 • 2 bed • 2 bath • 880 ft²










































































































































