G11 7DT - 3 bed substantial broomhill villa in Glasgow North West, G1…

View on Property Piper

3 bedroom terraced house for sale in Randolph Road, Broomhill, Glasgow, G11

Summary - 99, RANDOLPH ROAD, GLASGOW G11 7DT

3 bed 4 bath Terraced

Renovated Victorian end‑terrace with gable extension, large basement and sunny garden — ideal for families and professionals..
Extensively renovated Victorian end-terrace, approx. 2,598 sq ft
Striking gable‑end extension creating bright flexible living space
South/South‑West rear garden; low‑maintenance landscaping
Double monobloc driveway for off‑street parking
Substantial basement with external access: office, hobby room, WC
Three king‑sized bedrooms; principal with en‑suite WC
EPC rating E and Council Tax Band G (quite expensive)
Local area described as relatively deprived — impacts resale dynamics
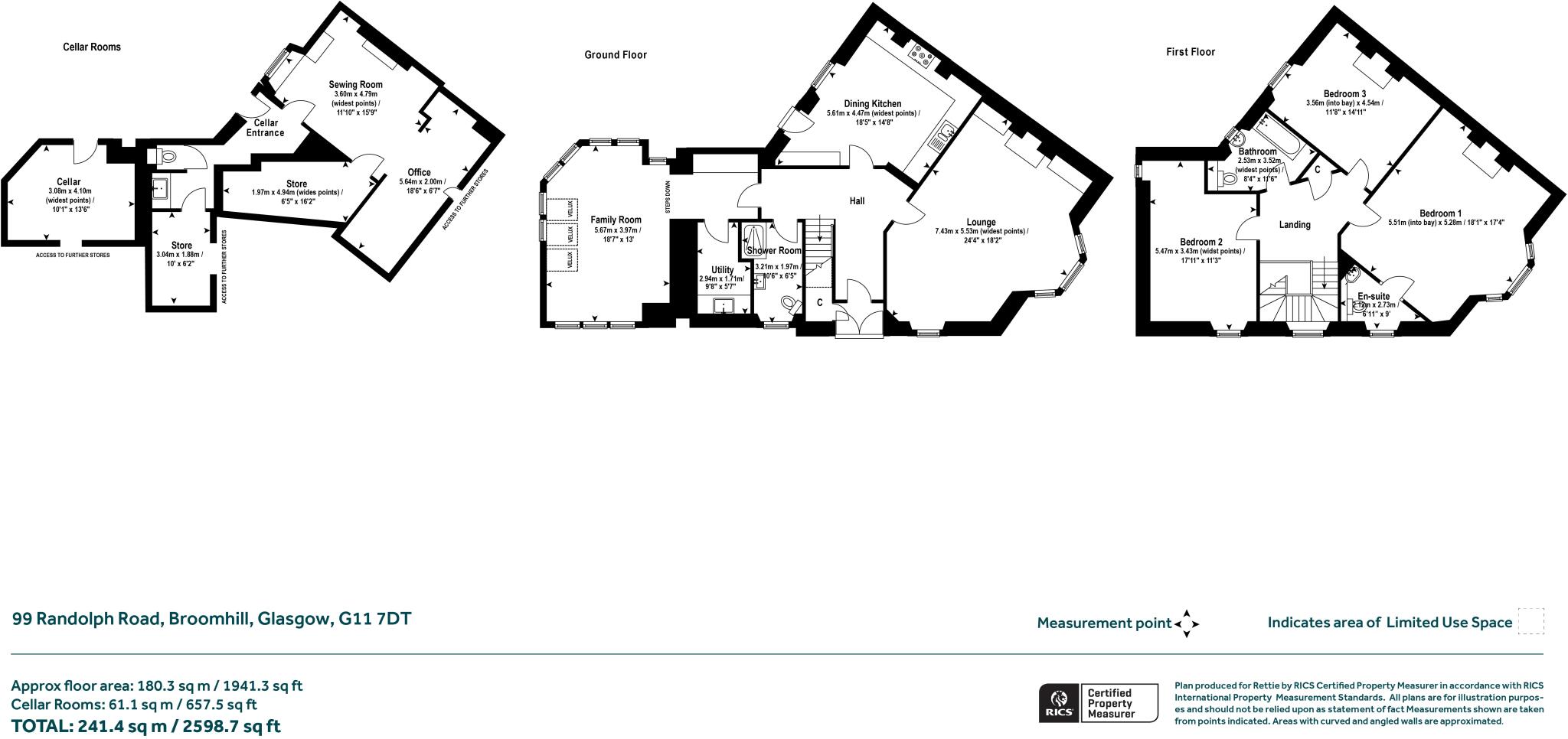
Set on a generous corner plot in sought-after Broomhill, this newly renovated red sandstone end-terrace villa blends striking Victorian character with modern living across approximately 2,598 sq ft. The property has been professionally extended, including a dramatic gable-end room that brings light and flexible family space, plus a thoughtfully low‑maintenance south/south‑west rear garden and double monobloc driveway for off-street parking.

Internally the home offers a broad reception hallway, a substantial living room with traditional fireplace and deep skirtings, a beautifully fitted dining kitchen with garden access, a utility room and a ground-floor shower room. The sizeable basement (external access) has been adapted to provide a home office, hobby room, generous storage and a WC — useful for working from home or as ancillary living space.

Upstairs are three king-sized bedrooms, the principal with en-suite WC, and a contemporary family bathroom. The finish throughout is high quality following recent renovations, making the house ready to occupy. Proximity to Crow Road amenities, Jordanhill station (approx. 0.5 miles) and nearby hospitals makes this a practical choice for families and professionals.

Important practical notes: the property carries an EPC rating of E and a high Council Tax band (G). The local area is described as relatively deprived, which may affect resale dynamics. A closing date has been set for Friday 20th June at 11am.

Property Details

Image Descriptions

Floorplan Description

Rooms

Textual Property Features

Target Audience

AI Tags

Detected Visual Features

Nearest Bars And Restaurants

,,,,}

Nearest General Shops

,,}

Nearest Grocery shops

,,}

Nearest Supermarkets

,,}

Nearest Religious buildings

,,}

Nearest Medical buildings

,,,}

Nearest Airports

,}

Nearest Leisure Facilities

,,,,}

Nearest Tourist attractions

,,}

Nearest Train stations

,,,,}

Nearest Bus stations and stops

,,,,}

Nearest Hotels

,,}

Tags

Local Market Stats

AirBnB Data

Similar Properties

Meta

High Res Images

Compatible Images

Low res Images

Thumbnails

Raw Images

High Res Floorplan Images

Compatible Floorplan Images

Low res Floorplan Images

FloorplanImages Thumbnail

Raw Floorplan Images