Spacious sustainable countryside living with private parkland access and low running costs.
Net zero carbon design with SIPs and MVHR
EPC A, solar panels and air-source heat pump
Extremely large living area — 2,228 sq ft
Private gated nine-home development, access to 36.625 acres
Two allocated off-street parking spaces
Generous principal bedroom with ensuite and study
Rural hamlet location — limited local amenities
Allotments free only until June 2027; future charges possible
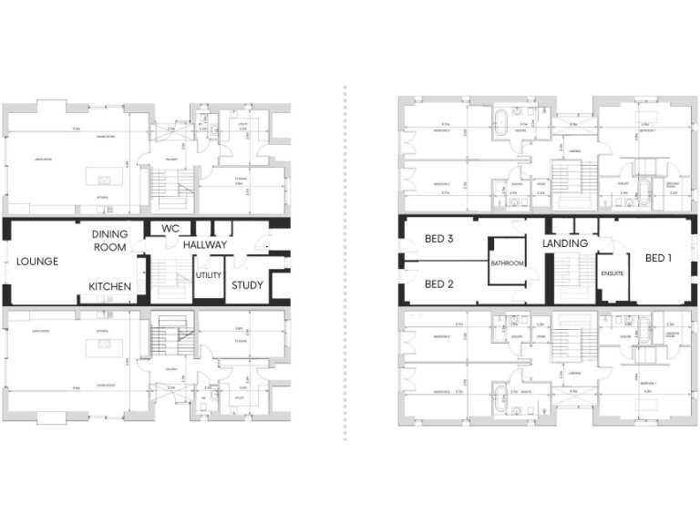
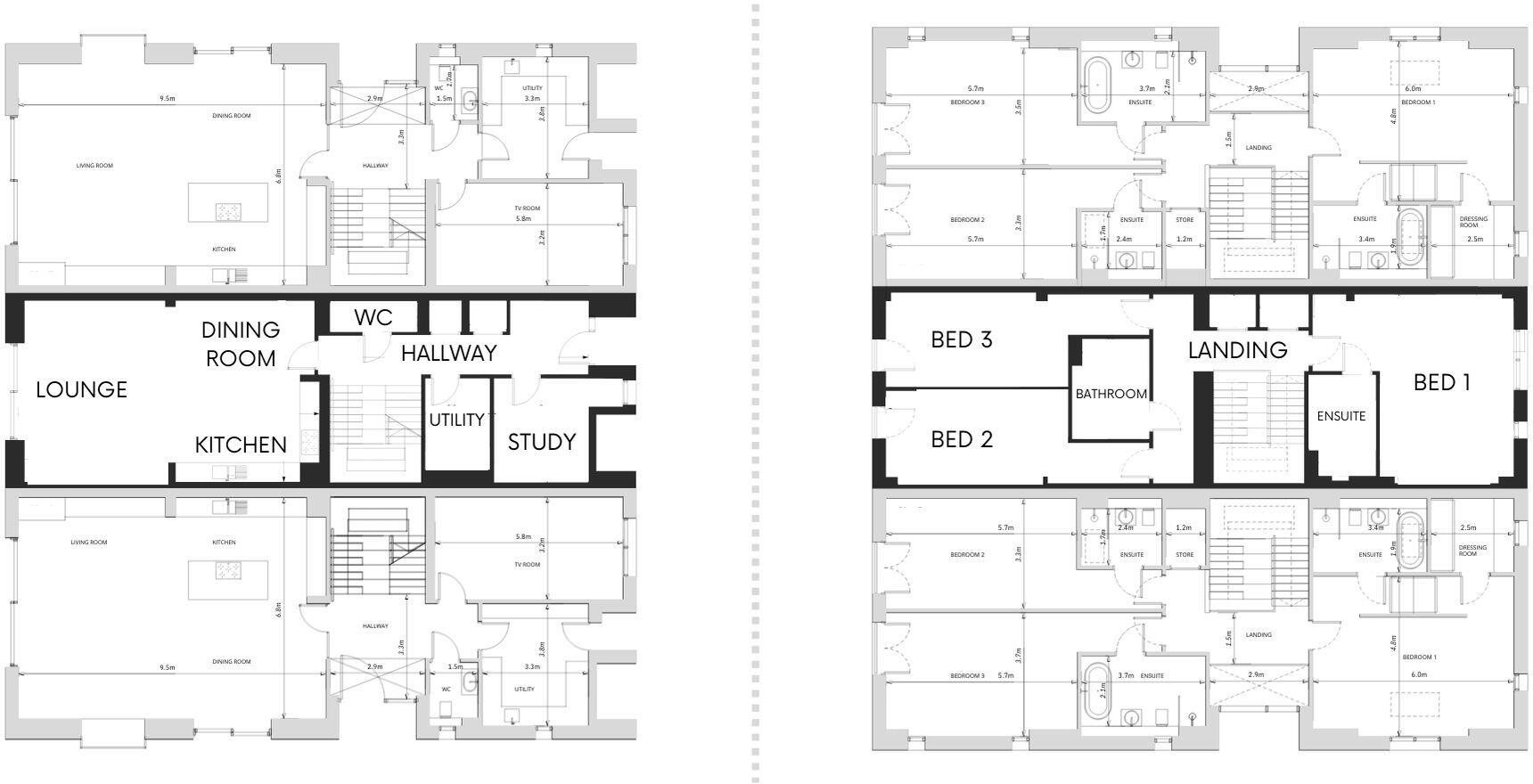
Hartdene Barns Barn 6 is a three-bedroom, two-bathroom architectural barn-style home offering net zero carbon performance and spacious, light-filled living. Constructed with SIPs, low-carbon concrete, MVHR, an air-source heat pump and solar panels, the house delivers very low running costs and an A EPC rating. The open-plan ground floor with vaulted ceilings, bespoke kitchen and sliding doors to a landscaped rear garden suits family life and entertaining.
The property sits within a private nine-home gated development and includes two allocated parking spaces plus privileged access to 36.625 acres of managed Kent countryside and private allotments. At 2,228 sq ft the home feels extremely large, with a separate study, utility room and generous bedrooms including a large principal suite with ensuite.
Buyers should note this is a rural, hamlet-style setting, so local amenities are limited and school options are mixed (one nearby primary rated “Requires Improvement”; others rated Good or Outstanding). The allotments are provided at no running cost only until June 2027, after which residents may face service or maintenance charges. The development emphasizes sustainability over conventional period character; buyers seeking an older, unaltered property should consider this modern, timber-framed architectural approach.
5 bedroom detached house for sale in Hartfield Road, Cowden, TN8 — £4,000,000 • 5 bed • 5 bath • 6469 ft²
4 bedroom link detached house for sale in Hartfield Road, Cowden, TN8 — £2,500,000 • 4 bed • 4 bath • 4392 ft²
3 bedroom detached bungalow for sale in Hartfield Road, Cowden, TN8 — £1,350,000 • 3 bed • 2 bath • 1830 ft²
4 bedroom detached house for sale in Hartfield Road, Cowden, TN8 — £1,500,000 • 4 bed • 3 bath • 2766 ft²
3 bedroom terraced house for sale in 3 Cedar Barn, Fosters Farm, Hayesden Lane, TN11 9AU, TN11 — £550,000 • 3 bed • 2 bath • 1035 ft²
4 bedroom detached house for sale in Firs Lane, Hollingbourne, The Firs, Hollingbourne, Maidstone, Kent, ME17 — £775,000 • 4 bed • 2 bath • 1061 ft²










































































































































