**Standout Features:**
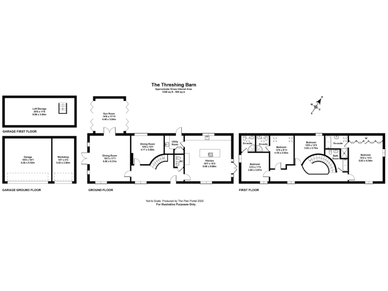
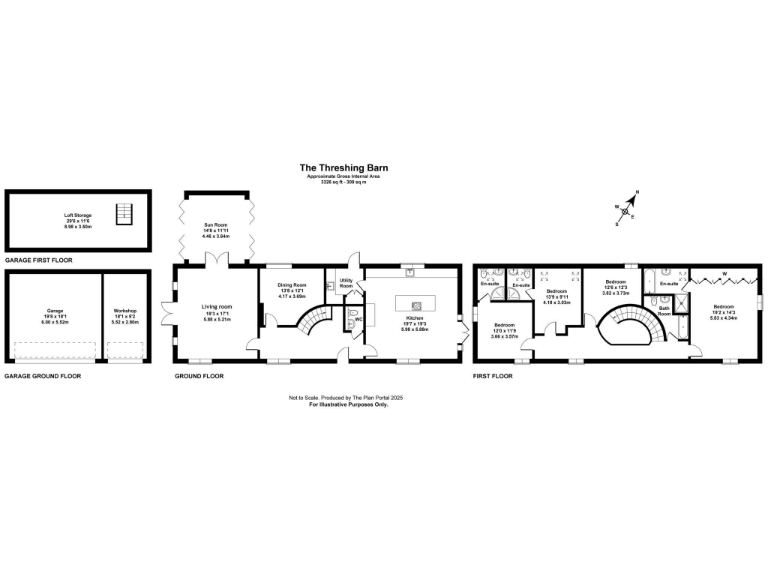
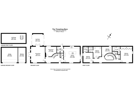
- Four double bedrooms and four luxurious bathrooms
- Expansive open-plan kitchen and dining area with high-end Neff appliances
- Impressive drawing room with a wood-burning stove and garden access
- Approximately 0.43 acre plot with breathtaking countryside views
- Detached double garage with remote-controlled doors and adjoining workshop
- Planning permission in place for loft conversion
- Sustainable heating with an air source heat pump and underfloor heating
- Picturesque gardens and ample gravel driveway parking
- Exceptionally low crime area with excellent school catchments nearby
**Summary:**
Discover The Threshing Barn, a beautifully converted barn that perfectly marries historic charm with modern sophistication. This meticulously renovated family home boasts four spacious double bedrooms, four elegant bathrooms, and an open-plan kitchen designed for both function and style, featuring luxurious granite countertops and top-of-the-line Neff appliances. The inviting drawing room is adorned with a traditional wood-burning stove, seamlessly connecting to the landscaped gardens where stunning countryside views create a serene backdrop for outdoor living.
Set on a generous 0.43-acre plot, the property benefits from planning permission for loft space conversion—ideal for a home office or creative studio. With sustainable features like an air source heat pump and underfloor heating, you can enjoy comfortable, eco-friendly living. The secured gated driveway leads to a detached double garage and workshop, creating ample space for vehicles or hobbies.
Situated within a quiet hamlet and surrounded by the breathtaking Chiltern Hills, this property offers tranquil living while maintaining superb access to local amenities, reputable schools, and London transport links. Don’t miss the chance to own this rare gem—an exquisite opportunity for families seeking comfort, convenience, and a taste of idyllic countryside life. Act quickly, as homes of this caliber do not stay on the market for long!



























































































































































































































































