**Standout Features:**
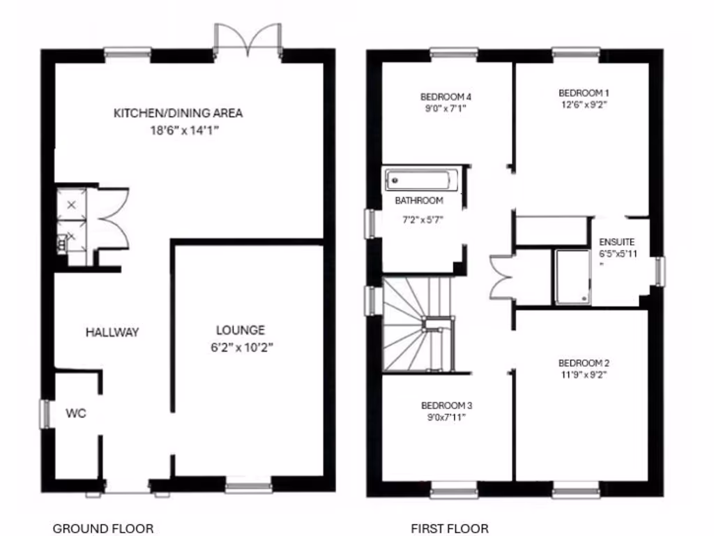
- **Spacious 4-Bedroom Detached Home:** Recently renovated and beautifully upgraded.
- **Modern Kitchen/Diner:** Equipped with integrated appliances and open-plan design.
- **Professionally Landscaped Garden:** Perfect for outdoor relaxation and entertaining.
- **Quiet Location:** Situated at the end of a tranquil street with an open aspect overlooking green space.
- **Garage with Electric Car Charging Point:** Ample parking for two cars and additional garage space.
- **Proximity to Amenities:** Close to local shops and highly regarded schools.
This stunning 4-bedroom detached home, priced at £375,000, offers the perfect blend of comfort and modernity in a highly desirable area. The spacious open-plan kitchen/diner, complete with integrated appliances, invites family gatherings and culinary adventures. Enjoy serene views of a well-maintained green space from your professionally landscaped garden, which serves as an idyllic retreat for relaxation or hosting gatherings.
Located in a peaceful neighborhood with exceptional school options and local amenities, this property is ideal for families or first-time buyers seeking their dream home. **The home is chain-free and boasts an electric car charging point**, addressing contemporary needs for sustainability. With its fast broadband speeds and excellent mobile signal, it is conducive for both work and play.
Don't miss this opportunity for a comfortable and future-ready living space with potential for further customization. Schedule a visit today and envision your life in this welcoming home!
4 bedroom detached house for sale in Stanley Boughey Place, Nantwich, Cheshire, CW5 — £450,000 • 4 bed • 3 bath • 1559 ft²
4 bedroom detached house for sale in Mallard Avenue, Edleston, Nantwich, CW5 — £315,000 • 4 bed • 2 bath • 1098 ft²
4 bedroom detached house for sale in Gainsborough Drive, Nantwich, CW5 — £585,000 • 4 bed • 2 bath • 1942 ft²
4 bedroom detached house for sale in Sandland Grove, Nantwich, CW5 — £575,000 • 4 bed • 3 bath • 1518 ft²
4 bedroom detached house for sale in Montgomery Avenue, Henhull, Nantwich, Cheshire, CW5 — £425,000 • 4 bed • 2 bath • 887 ft²
5 bedroom detached house for sale in Comberbach Drive, Nantwich, Cheshire, CW5 — £525,000 • 5 bed • 4 bath • 2250 ft²


































































