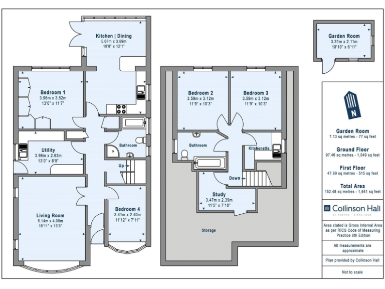
**Standout Features:**
- Spacious 4-bedroom detached bungalow with 1641 sq. ft. of living space
- Contemporary, open-plan kitchen with vaulted ceiling and abundant natural light
- Well-maintained rear garden with a useful garden room
- Off-street parking with a generous driveway
- Converted loft space featuring two additional bedrooms and a home office
- Quiet, family-friendly cul-de-sac location in affluent St. Albans
**Potential Downsides:**
- Built between 1950-1966; may require updating for modern preferences
- Council tax band E; consider budgeting for local tax requirements
This beautifully presented detached bungalow in St. Albans offers an ideal family oasis with four generously sized bedrooms, perfect for growing families or those seeking extra space. The open-plan modern kitchen is a culinary enthusiast's dream, bathed in natural light thanks to large windows and a vaulted ceiling. Relax in the cozy living room or step outside to the well-manicured garden, complete with a versatile garden room, ideal for entertaining or quiet reflection.
Situated in a sought-after location, this home ensures convenience with excellent local schools and transportation links to M1 and M25. The property's cased loft conversion allows for extra living space, providing a home office and additional bedrooms, making it perfect for remote work and guest accommodations. This exceptional property combines charm, space, and modern comforts, making it a must-see for families looking to settle in a vibrant neighborhood. Don’t miss this opportunity—the ideal family home awaits!
2 bedroom bungalow for sale in Warren Road, St. Albans, Hertfordshire, AL1 — £550,000 • 2 bed • 1 bath • 1050 ft²
2 bedroom bungalow for sale in Green Lane, St. Albans, Hertfordshire, AL3 — £600,000 • 2 bed • 2 bath • 787 ft²
4 bedroom detached bungalow for sale in Swans Close, St. Albans, AL4 0TL, AL4 — £900,000 • 4 bed • 3 bath • 1680 ft²
4 bedroom detached bungalow for sale in Park Street Lane, Park Street, St. Albans, AL2 — £775,000 • 4 bed • 2 bath • 1068 ft²
4 bedroom detached house for sale in Park Street Lane, Park Street, St. Albans, Hertfordshire, AL2 — £875,000 • 4 bed • 3 bath • 1920 ft²
2 bedroom bungalow for sale in Mile House Close, St. Albans, Hertfordshire, AL1 — £625,000 • 2 bed • 1 bath • 656 ft²










































































