Bright two-bed city flat with garage and balcony — long lease, close to amenities..
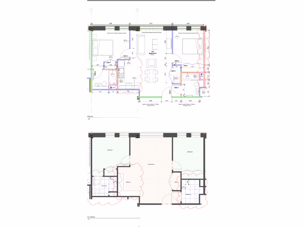
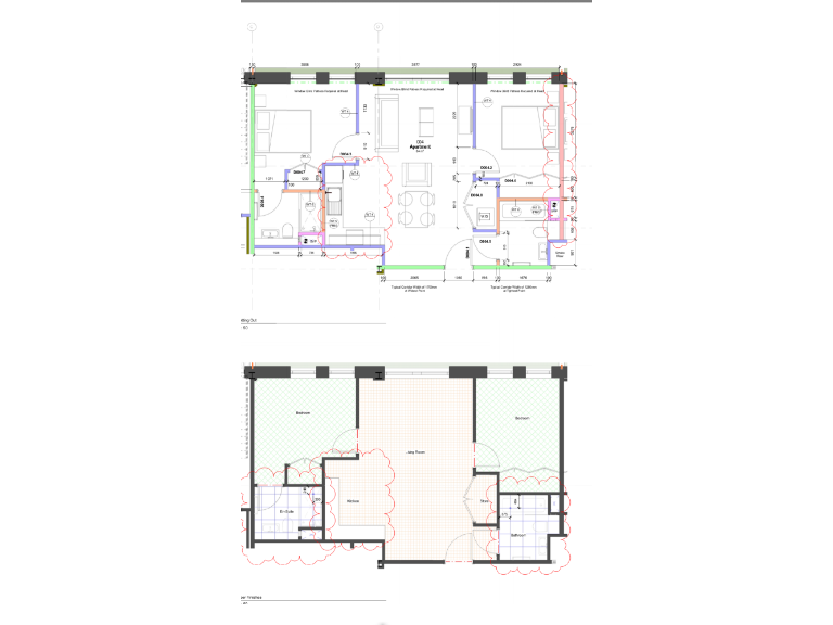
Two bedrooms and two bathrooms, open-plan living with balcony
Garage included for parking or storage
Long lease: 142 years remaining
Service charge £1,440pa; ground rent £350pa
Electric room heaters — higher running costs likely
Area classified as very deprived; crime level very high
Fast broadband and excellent mobile signal for remote work
Convenient central location with wide local amenities
This two-bedroom, two-bathroom apartment offers straightforward, low-maintenance city living with a private outdoor balcony and an included garage. The open-plan living area and modern kitchen provide a bright, practical space for daily life or rental use. At about 688 sq ft, the flat is an average-sized property suited to professionals or first-time buyers who want city convenience without extensive upkeep.
Practical details are favourable: a long lease (142 years remaining) provides security, while fast broadband and excellent mobile signal support home working. The building presents a modern brick exterior and large windows that deliver good natural light to the principal rooms. Local amenities are extensive — shops, transport, leisure and dining are all within easy reach, which supports both comfortable living and strong rental demand.
Buyers should weigh a few important negatives. The neighbourhood records very high crime and is classified as very deprived, which will affect lifestyle and potentially resale or rental premiums. Heating is electric room heaters rather than a gas central system, which can increase energy costs. Annual costs include an average service charge of £1,440 and ground rent of £350.
Overall this flat suits a buyer seeking a modern, low-maintenance city base or an investor looking for a rental property in a well-connected area. Be realistic about the local crime profile and running costs when assessing long-term value and budgeting for utilities and service charges.
2 bedroom flat for sale in Ryland Street, Birmingham, West Midlands, B16 — £185,000 • 2 bed • 2 bath • 958 ft²
2 bedroom flat for sale in Spring Street, Birmingham, West Midlands, B15 — £230,000 • 2 bed • 2 bath • 700 ft²
2 bedroom flat for sale in Wheeleys Lane, Birmingham, West Midlands, B15 — £177,500 • 2 bed • 1 bath • 822 ft²
2 bedroom apartment for sale in Communication Row, Birmingham, West Midlands, B15 — £225,000 • 2 bed • 2 bath • 634 ft²
1 bedroom apartment for sale in Sheepcote Street, Birmingham, B16 — £205,000 • 1 bed • 1 bath • 485 ft²
2 bedroom flat for sale in Sheepcote Street, Birmingham, West Midlands, B16 — £150,000 • 2 bed • 2 bath • 765 ft²










































































