Comfortable family home minutes from parks, stations and local shops.
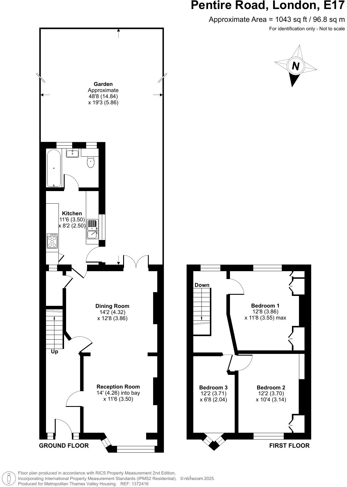
- Three bedrooms with separate reception room and kitchen
- Private rear garden, small plot suitable for low maintenance
- Good transport: Overground and Victoria Line within walking distance
- Nearby parks, shops, and several well-rated primary and secondary schools
- Freehold tenure and affordable council tax
- Single family bathroom only; may be tight for some households
- Solid-brick construction with assumed no wall insulation (upgrade recommended)
- Double glazing present; install date unknown
Bright three-bedroom mid-terrace in Walthamstow, set within an established, well-connected neighbourhood. The house offers a generous reception room, separate kitchen and a private rear garden — a practical layout for family life or rental income. Transport links are strong, with Overground and Victoria Line stations within walking distance and local shops, parks and good schools nearby.
Constructed early 20th century of solid brick, the property presents period bones with modern finishes in the reception. Energy performance sits at band C; glazing is double but install date is unknown. There is one family bathroom and radiator heating fed from a mains gas boiler.
The freehold tenure and affordable council tax improve running costs. The plot is small and the house is average sized internally, so it suits buyers seeking a compact family home, first-time purchasers or buy-to-let investors. Some upgrading — particularly wall insulation and any cosmetic refresh — would add comfort and long-term value.
4 bedroom terraced house for sale in Forest View Road, Walthamstow, E17 — £650,000 • 4 bed • 1 bath • 1292 ft²
3 bedroom terraced house for sale in Forest View Road, Walthamstow, London, E17 — £575,000 • 3 bed • 1 bath • 1067 ft²
3 bedroom terraced house for sale in Ascham End, Walthamstow, E17 — £500,000 • 3 bed • 1 bath • 700 ft²
3 bedroom terraced house for sale in Thorpe Hall Road, Walthamstow, E17 — £550,000 • 3 bed • 1 bath • 891 ft²
3 bedroom terraced house for sale in Lyne Crescent, London, E17 — £700,000 • 3 bed • 1 bath • 909 ft²
3 bedroom terraced house for sale in Stirling Road, London, E17 — £575,000 • 3 bed • 1 bath • 809 ft²






























































































