Quiet cul-de-sac close to shops, station and good schools.
Detached three‑bed home with flexible two‑storey layout
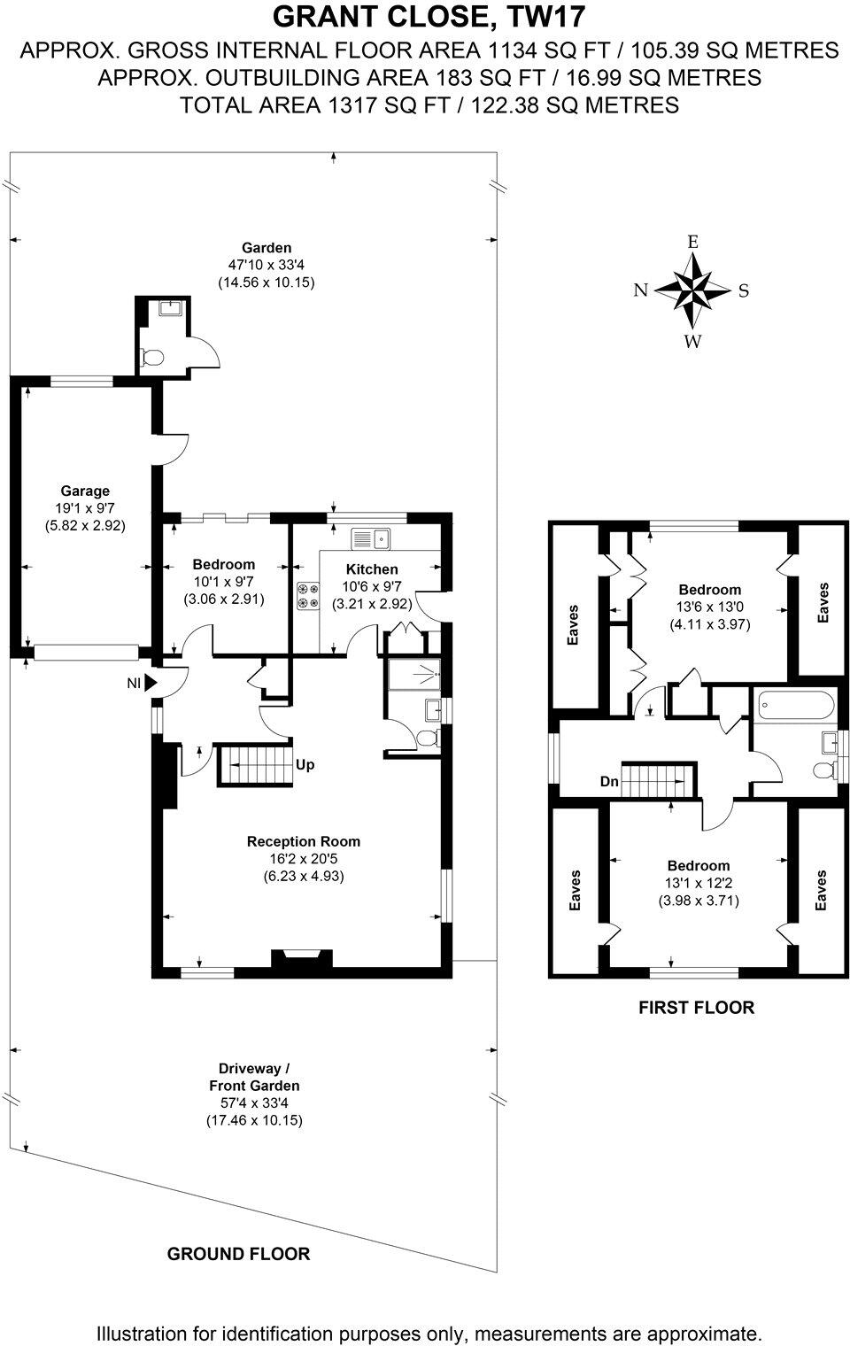
Set at the end of a quiet cul‑de‑sac, this detached three‑bed home offers comfortable family living with immediate potential. The property extends to about 1,100 sq ft with flexible rooms across two storeys, two bathrooms and a ground‑floor bedroom and shower room that suit multigenerational living or a home office.
Practical features include a large driveway, garage, and a mature rear garden approaching 50ft — perfect for children and summer entertaining. The location is a strong daily draw: only around 500ft from Shepperton High Street, close to the station and within catchment for well‑rated local schools.
The house was built in the mid‑20th century and will reward buyers who want to improve and personalise: there is scope to update kitchens, bathrooms and decorative finishes, and potential to extend subject to consent. Double glazing is fitted though the installation date is unknown; the property is heated by a mains‑gas boiler and radiators.
Notable practical points: the house is offered chain free on freehold tenure, which speeds transactions. The area is affluent and well served by local amenities, but recorded local crime levels are higher than average — sensible security and awareness are advised. Overall, this is a solid family home with room to modernise and add value in a desirable Shepperton setting.
3 bedroom detached house for sale in Grant Close, Shepperton, TW17 — £625,000 • 3 bed • 2 bath • 1350 ft²
3 bedroom detached house for sale in Mervyn Road, Shepperton, TW17 — £850,000 • 3 bed • 1 bath • 1600 ft²
3 bedroom terraced house for sale in Cassocks Square, Shepperton, TW17 — £495,000 • 3 bed • 2 bath • 873 ft²
4 bedroom detached house for sale in Manor Farm Avenue, Shepperton, TW17 — £900,000 • 4 bed • 2 bath • 1239 ft²
3 bedroom link detached house for sale in Hawthorn Way, Shepperton, TW17 — £525,000 • 3 bed • 2 bath • 1473 ft²
3 bedroom end of terrace house for sale in Duppas Close, Shepperton, TW17 — £530,000 • 3 bed • 1 bath • 921 ft²






















































