Large garden, garage and scope to modernise — ideal for growing families..
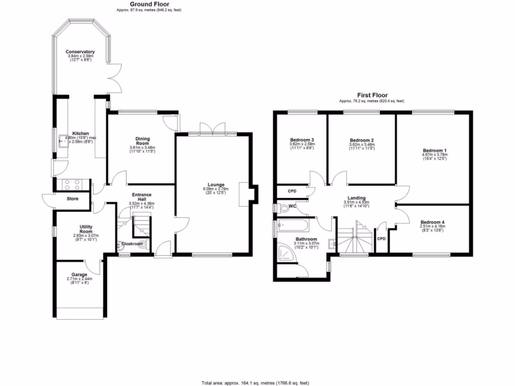
Detached four-bedroom family home with large mature rear garden
About 1,766 ft² of living space across two storeys
Garage/store plus ample off-street parking for several cars
Conservatory, separate lounge and dining room—flexible layout
EPC D; warm-air gas heating and no assumed cavity wall insulation
Single large family bathroom for four bedrooms; some dated interiors
Built 1967–1975—scope to extend and modernise (subject to planning)
Council tax band noted as expensive
This roomy four-bedroom detached house in Hartford occupies a generous plot with a mature rear garden and off-street parking. The layout suits a growing family: lounge, dining room, conservatory, kitchen, utility, cloakroom and a large family bathroom upstairs. The property extends to about 1,766 ft² and includes a garage/store. There is clear potential to update and extend to modern standards and personal taste.
Practical points: the home dates from the late 1960s/early 1970s with double glazing but an EPC rating of D and warm-air mains gas heating. Cavity walls are as-built with no assumed added insulation; some insulation and energy-efficiency improvements would be beneficial. The single family bathroom may feel limited for four bedrooms and the interior has some dated fittings that will reward refurbishment.
Location is a strong selling point: an established residential street a short walk from the village shopping parade, schools rated Good or better, local amenities and fast broadband. The plot size and built form give scope for modest extensions (subject to planning). Council tax is noted as expensive. Overall this is a comfortable family home with good space, a large garden and clear improvement potential for buyers wanting to add value.
4 bedroom detached house for sale in Grosvenor Avenue, Hartford, CW8 — £330,000 • 4 bed • 1 bath • 1509 ft²
4 bedroom detached house for sale in Impeccably extended detached property tucked away in the heart of the village, CW8 — £550,000 • 4 bed • 2 bath • 2311 ft²
4 bedroom detached house for sale in Northwich Road, Hartford, CW8 — £900,000 • 4 bed • 3 bath • 2264 ft²
4 bedroom detached house for sale in Abbey Way, Hartford, CW8 — £575,000 • 4 bed • 2 bath • 2079 ft²
4 bedroom detached house for sale in Mornant Avenue, Hartford, CW8 — £550,000 • 4 bed • 2 bath • 1885 ft²
4 bedroom detached bungalow for sale in Chantry Avenue, Hartford, Northwich, CW8 — £460,000 • 4 bed • 2 bath • 2200 ft²






















































































