WS15 1AE - 3 bedroom semidetached house for sale in Waterside, Brereto…

View on Property Piper

3 bedroom semi-detached house for sale in Waterside, Brereton, Rugeley, WS15

Summary - 12 WATERSIDE, RUGELEY WS15 1AE

3 bed 1 bath Semi-Detached

**Standout Features:**
- Large corner plot, ideal for development
- Spacious rear garden with lawn, greenhouse, and timber shed
- Chain-free sale for quick processing
- Well-suited for families, offering ample living space

**Summary:**
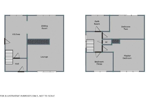
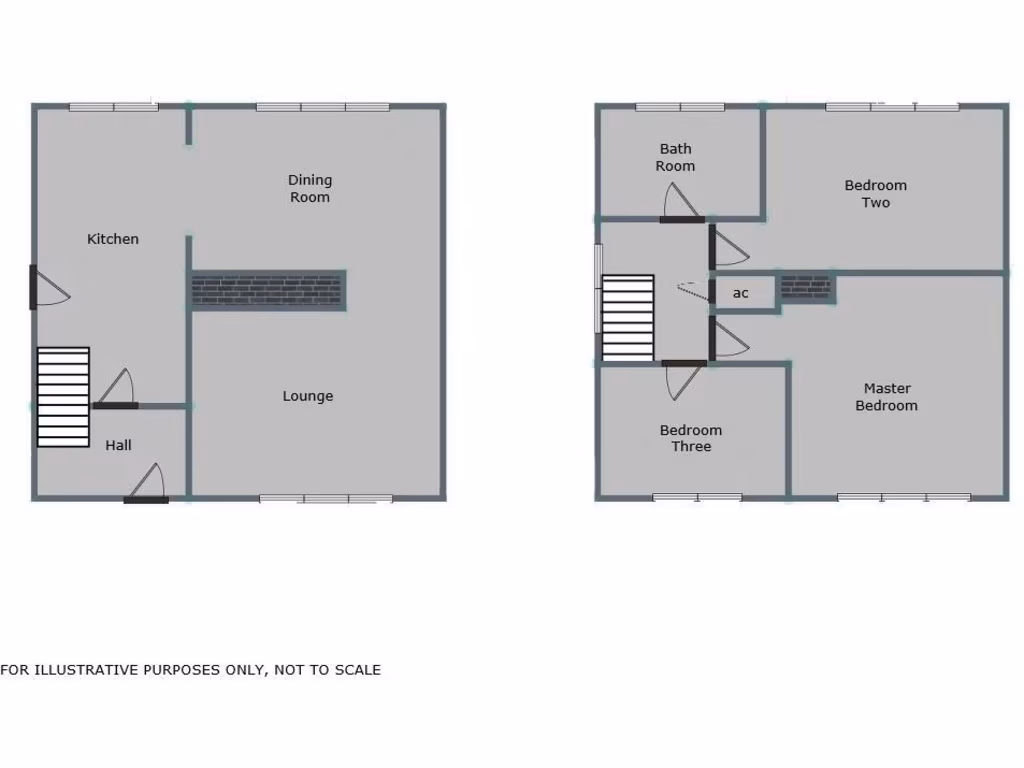
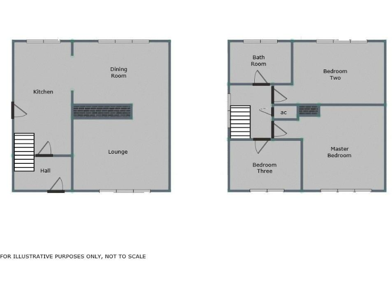
Unlock the potential of this three-bedroom semi-detached house, perfectly positioned on a sizeable end corner plot within a tranquil cul-de-sac in Brereton. With an inviting entrance hallway leading to the heart of the home, including a functional kitchen and a bright rear dining area that flows into the cozy lounge, this property is designed with family living in mind. Upstairs, you'll find three well-sized bedrooms and a family bathroom, all benefiting from ample natural light.

Outside, envision your dream garden: the expansive rear space is perfect for entertaining or personal recreation, complete with a large lawn, mature greenery, and a practical timber shed. The front garden offers the potential for driveway development, adding extra convenience. Located just minutes from Rugeley town centre and close to Cannock Chase, a local natural beauty spot, this home provides both charm and accessibility. Priced at £175,000, this property is not just a home—it’s a fantastic investment opportunity in a challenging yet thriving community. Act quickly; opportunities like this don’t come around often!

Property Details

Brochure Descriptions

Image Descriptions

Floorplan Description

Rooms

Textual Property Features

Detected Visual Features

EPC Details

Nearby Schools

Nearest Bars And Restaurants

,,,,}

Nearest General Shops

,,}

Nearest Grocery shops

,,}

Nearest Supermarkets

,,}

Nearest Religious buildings

,,}

Nearest Medical buildings

,,,}

Nearest Leisure Facilities

,,,,}

Nearest Tourist attractions

,,}

Nearest Train stations

,,,,}

Nearest Bus stations and stops

,,,,}

Nearest Hotels

,,}

Tags

Local Market Stats

Similar Properties

Meta

High Res Images

Compatible Images

Low res Images

Thumbnails

Raw Images

High Res Floorplan Images

Compatible Floorplan Images

Low res Floorplan Images

FloorplanImages Thumbnail

Raw Floorplan Images