Large, flexible four-bedroom home with open-plan living and a generous private garden.
Chain-free freehold detached family house
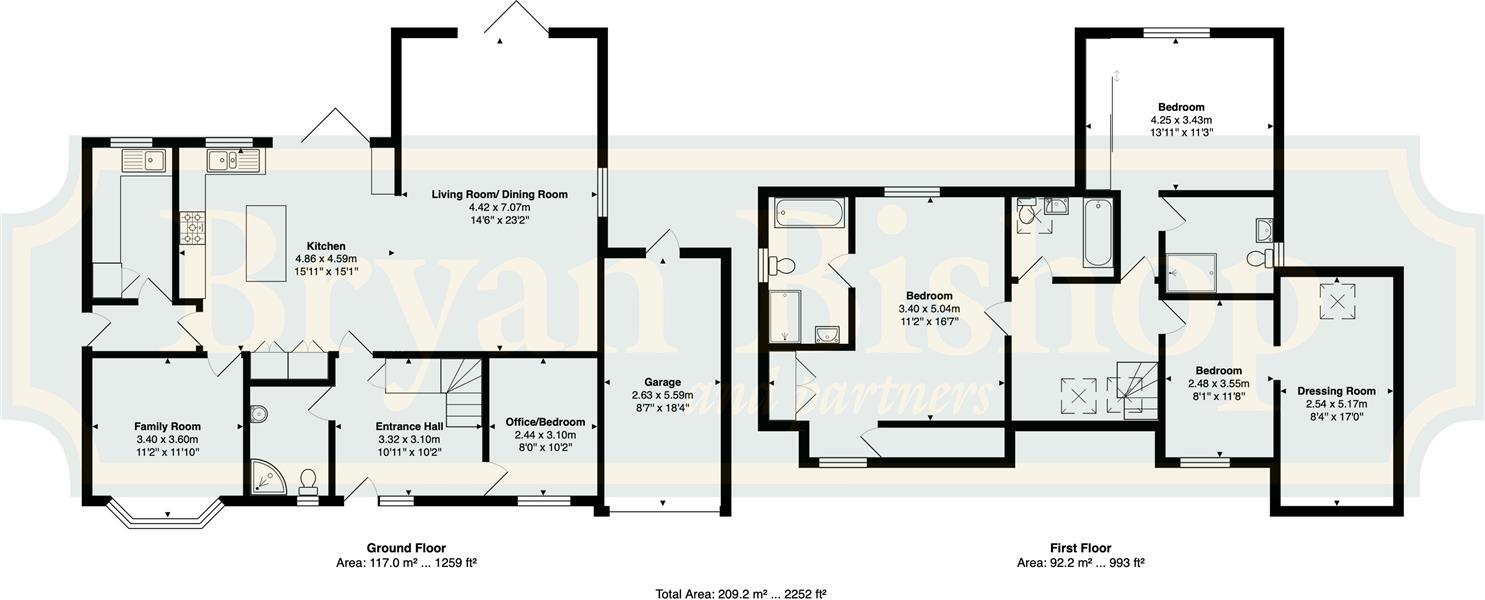
Set in the sought-after Oaklands area of Welwyn, this spacious four-bedroom detached family home offers flexible accommodation across generous living areas and a large private garden. The rear of the house is arranged as an impressive open-plan kitchen, living and dining suite with two sets of bi-fold doors bringing in abundant daylight and creating seamless indoor–outdoor flow — ideal for family living and entertaining.
Upstairs provides three double bedrooms, three bathrooms and a luxury principal suite with built-in storage and separate bath and shower. The ground floor already includes a shower room and could be reconfigured to provide additional bedroom space on the ground floor if required. Practical additions include a utility room, integral garage with driveway parking and fast broadband and mobile signal.
The property is chain-free and freehold, sits on a large plot with established borders and a full-width patio, and benefits from very low local crime and no flood risk. Excellent local amenities and top-performing schools are within short reach, and Welwyn North station offers a quick commute to London.
A few points to note: the house was built in the late 1960s–1970s so buyers should expect the fabric and services to reflect that era. Council tax is described as expensive. While decorative order is described as immaculate, there remains scope to modernise or extend (including potential internal connection/extension of the garage) for buyers wishing to add value or further adapt the layout.
5 bedroom detached house for sale in Copper Beeches, Welwyn, AL6 — £850,000 • 5 bed • 2 bath • 2016 ft²
5 bedroom detached house for sale in Oaklands Rise, Welwyn, AL6 — £1,250,000 • 5 bed • 3 bath • 3794 ft²
4 bedroom detached house for sale in Birch Grove, Welwyn, AL6 — £785,000 • 4 bed • 2 bath • 2095 ft²
4 bedroom detached house for sale in Hillside Way, Oaklands, Welwyn, Hertfordshire, AL6 — £700,000 • 4 bed • 2 bath • 2119 ft²
4 bedroom detached house for sale in Turpins Ride, Welwyn, AL6 — £775,000 • 4 bed • 2 bath • 2007 ft²
4 bedroom detached bungalow for sale in Tanglewood, Welwyn, AL6 — £800,000 • 4 bed • 3 bath • 2048 ft²






















































































































