Bright three-bedroom home ideal for first movers seeking modern, low-maintenance living.
Brand-new three-bedroom detached home with open-plan living area
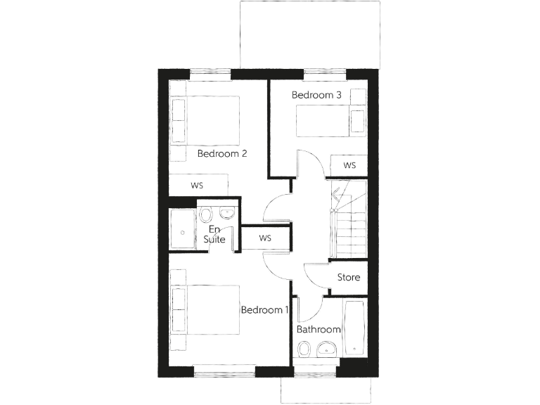
Plot 177 (The Mason) is a brand-new, three-bedroom detached home set within the Westcombe Park garden-village on the edge of Maldon. The house is arranged around an L-shaped open-plan kitchen, dining and family area that opens through French doors to the rear garden, plus a separate dual-aspect living room and ground-floor cloakroom — a practical layout for everyday family life and flexible home working.
Practical touches include a utility room with external access, two dining-area storage cupboards and an en-suite to the principal bedroom. The home comes freehold, chain-free and with a 10-year NHBC Buildmark policy, and first-time buyers may benefit from reduced or no stamp duty on qualifying purchases. The development is close to Heybridge Basin, local leisure facilities and planned on-site community amenities, with convenient road links to the A12 and nearby train stations for commuting.
Buyers should note this property is part of a large, multi-phase development. There is an Estate Management Charge of £598 annually and some service and council tax details are still to be confirmed. Plot size and internal area are average for a modern family home (approximately 1,043 sq ft) — attractive for those wanting new-build ease rather than large, mature gardens or a secluded rural plot.
This house will suit first-time buyers and young families looking for a modern, low-maintenance home in a semi-rural setting with good local schools and leisure options. Consider the management charge and ongoing development phases when weighing long-term running costs and immediate surroundings.
2 bedroom semi-detached house for sale in Land Off Broad Street, Green Road,
Maldon,
Essex,
CM9 8NY, CM9 — £370,000 • 2 bed • 1 bath • 757 ft²
2 bedroom semi-detached house for sale in Land Off Broad Street, Green Road,
Maldon,
Essex,
CM9 8NY, CM9 — £350,000 • 2 bed • 1 bath • 668 ft²
3 bedroom detached house for sale in Land Off Broad Street, Green Road,
Maldon,
Essex,
CM9 8NY, CM9 — £442,000 • 3 bed • 1 bath • 905 ft²
2 bedroom semi-detached house for sale in Land Off Broad Street, Green Road,
Maldon,
Essex,
CM9 8NY, CM9 — £360,000 • 2 bed • 1 bath • 668 ft²
3 bedroom detached house for sale in Land Off Broad Street, Green Road,
Maldon,
Essex,
CM9 8NY, CM9 — £447,500 • 3 bed • 1 bath • 905 ft²
2 bedroom semi-detached house for sale in Land Off Broad Street, Green Road,
Maldon,
Essex,
CM9 8NY, CM9 — £360,000 • 2 bed • 1 bath • 668 ft²






















































































