**Standout Features:**
- Spacious semi-detached bungalow
- Energy-efficient with solar panels and recently installed combi boiler (2023)
- Well-maintained with modern double glazing
- Generous rear garden and versatile garden room
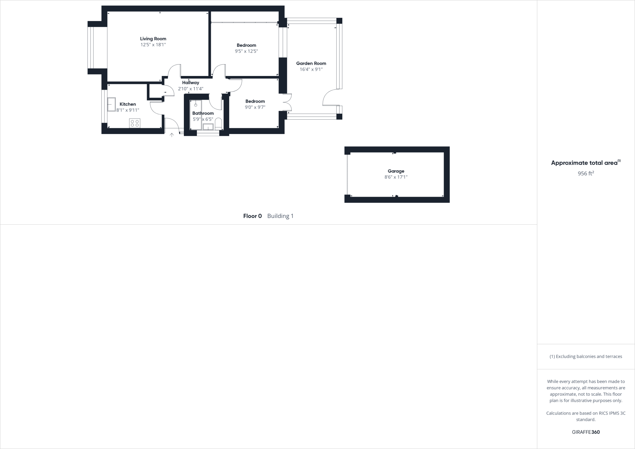
- Off-street parking for at least two vehicles, plus a detached garage
- Located in a peaceful, friendly village with low crime rates
**Potential Concerns:**
- Broadband speeds are slow
- Some maintenance may be required for the gardens or exterior
Discover this charming semi-detached bungalow in the sought-after village of Toft Hill, where modern living meets rural tranquility. Boasting 956 sq ft of well-utilized space, this two-bedroom home features bright interiors, a cozy living room with a welcoming fireplace, and a recently updated shower room. The stylish kitchen offers ample storage, while a generous garden room provides serene views of the beautifully landscaped garden—perfect for relaxation or entertaining year-round.
Ideal for families or first-time buyers, this property is situated close to excellent primary schools, ensuring a supportive educational environment for children. With a delightful local community and amenities including pubs and shopping options nearby, you will feel right at home. The outdoor space is an added bonus, with a meticulously maintained garden, practical storage sheds, and greenhouse.
Don’t miss your chance to own this delightful bungalow, complete with energy-saving solar panels and a recent boiler update, offering comfort and peace of mind. Properties of this quality in such a desirable location don't last long—schedule your viewing today!
2 bedroom terraced house for sale in Toft Hill, DL14 — £125,000 • 2 bed • 1 bath • 747 ft²
2 bedroom terraced house for sale in Toft Hill, Bishop Auckland, Durham, DL14 — £90,000 • 2 bed • 1 bath • 780 ft²
3 bedroom end of terrace house for sale in Toft Hill, Bishop Auckland, DL14 — £150,000 • 3 bed • 1 bath • 2465 ft²
4 bedroom detached house for sale in Lilac Way, Toft Hill, Bishop Auckland, Durham, DL14 — £300,000 • 4 bed • 2 bath • 1631 ft²
2 bedroom end of terrace house for sale in Toft Hill, Bishop Auckland , DL14 — £120,000 • 2 bed • 1 bath • 909 ft²
2 bedroom cottage for sale in Toft Hill Lane, Toft Hill, Bishop Auckland, Durham, DL14 0JA, DL14 — £100,000 • 2 bed • 1 bath














































































