Well-presented semi near the beach with sea views and parking — handy commuter links.
Two double bedrooms; principal bedroom with sea views
Off-street driveway parking for multiple vehicles
Generous rear garden with patio and powered shed
Fitted kitchen/diner plus separate utility room
Cavity walls assumed uninsulated — potential upgrade needed
Single family bathroom only; two-storey layout
Freehold tenure; fast broadband and excellent mobile signal
Area deprivation note; local crime level average
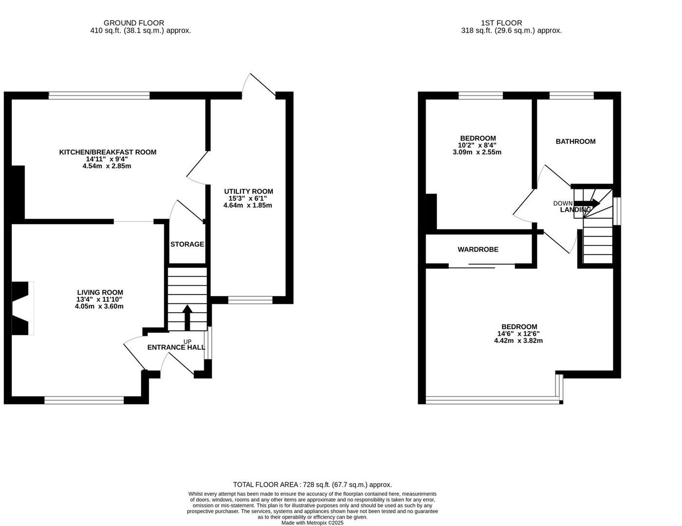
Bright, well-presented two-bedroom semi-detached house in St. Leonards-on-Sea, ideal for a small family or couple seeking coastal living within walking distance of the beach and West St. Leonards station. The principal bedroom benefits from far-reaching sea views and the ground floor offers a front living room, a fitted kitchen/dining area and a practical utility room with direct garden access. A useful lawned garden, patio for alfresco dining and an electric-powered garden shed add outdoor appeal.
Practical features include a driveway providing off-street parking for multiple vehicles, freehold tenure and fast broadband with excellent mobile signal — useful for remote working or commuting. The property is well presented throughout with a stylish family bathroom and double glazing (installation date unknown).
Buyers should note some energy and maintenance considerations: the property’s cavity walls are recorded as built with no insulation (assumed) and heating includes room heaters alongside mains gas, which may affect running costs. The plot is small and the house has a single family bathroom. The surrounding area scores as deprived and local crime levels are average, information to weigh against the location benefits.
Overall this traditional early-20th-century semi offers a comfortable, ready-to-move-in home with genuine sea views and good transport links. It will suit first-time buyers, downsizers or small families who value location and outdoor space but should be evaluated for potential insulation and heating upgrades to reduce future energy costs.
 2 bedroom semi-detached house for sale in Bexleigh Avenue, St. Leonards-On-Sea, TN38 — £275,000 • 2 bed • 1 bath • 914 ft²
 2 bedroom semi-detached house for sale in Bexleigh Avenue, St. Leonards-On-Sea, TN38 — £275,000 • 2 bed • 1 bath • 914 ft² 2 bedroom semi-detached house for sale in Gleneagles Drive, St. Leonards-on-sea, TN38 — £260,000 • 2 bed • 1 bath • 883 ft²
 2 bedroom semi-detached house for sale in Gleneagles Drive, St. Leonards-on-sea, TN38 — £260,000 • 2 bed • 1 bath • 883 ft² 2 bedroom semi-detached house for sale in Warren Close, St. Leonards-On-Sea, TN38 — £270,000 • 2 bed • 1 bath • 686 ft²
 2 bedroom semi-detached house for sale in Warren Close, St. Leonards-On-Sea, TN38 — £270,000 • 2 bed • 1 bath • 686 ft² 2 bedroom semi-detached house for sale in Gleneagles Drive, St. Leonards-On-Sea, TN38 — £250,000 • 2 bed • 1 bath • 574 ft²
 2 bedroom semi-detached house for sale in Gleneagles Drive, St. Leonards-On-Sea, TN38 — £250,000 • 2 bed • 1 bath • 574 ft² 2 bedroom semi-detached house for sale in Bulverhythe Road., ST. LEONARDS-ON-SEA, TN38 — £285,000 • 2 bed • 2 bath • 632 ft²
 2 bedroom semi-detached house for sale in Bulverhythe Road., ST. LEONARDS-ON-SEA, TN38 — £285,000 • 2 bed • 2 bath • 632 ft² 2 bedroom semi-detached house for sale in Gleneagles Drive, St. Leonards-On-Sea, TN38 — £270,000 • 2 bed • 1 bath • 581 ft²
 2 bedroom semi-detached house for sale in Gleneagles Drive, St. Leonards-On-Sea, TN38 — £270,000 • 2 bed • 1 bath • 581 ft²


































































