Modern three-storey home close to schools and stations, ready to move into.
Chain free freehold property
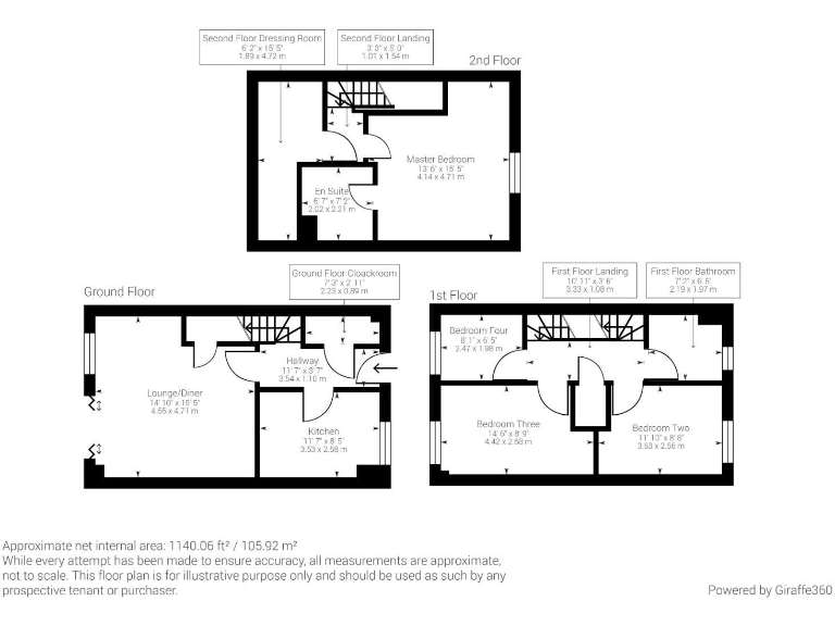
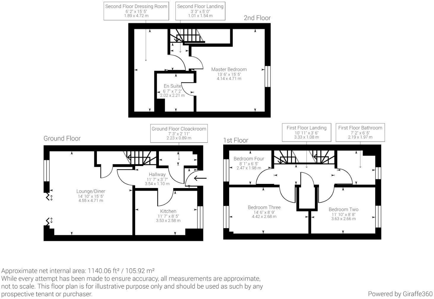
Four bedrooms, master with en-suite
Open-plan lounge diner and modern kitchen
Ground-floor WC and large under-eaves storage
Allocated rear parking for two vehicles
Small plot and overall footprint is modest
Medium flood risk in this postcode area
Fast broadband and excellent mobile signal
A modern three-storey townhouse arranged for flexible family living, offered chain free and freehold. The house provides four bedrooms, a master with en-suite, an open-plan lounge/diner and a contemporary fitted kitchen. Practical extras include a ground-floor WC, large under-eaves storage and two allocated parking spaces accessed via a rear lane.
The plot and footprint are modest, so internal space is used efficiently rather than generously. The enclosed rear garden is private and low maintenance, with rear access to parking. Broadband is fast and mobile signal is excellent — useful for home working — and nearby schools and Brentwood/Shenfield stations are within easy reach.
Notable points to bear in mind: the property sits in an area with medium flood risk and average local crime figures. The plot is small and overall house size is described as small for the postcode. Council tax band is moderate. These factors should be considered alongside the benefits of a turn-key modern finish and allocated parking for two cars.
This home suits families seeking practical, low-upkeep living near good schools and transport links, or buyers who prioritise modern fixtures and convenience over a large garden or expansive rooms. The end-of-chain position speeds purchase and the freehold tenure simplifies ownership.
4 bedroom semi-detached house for sale in Elm Gardens, Mountnessing, CM15 — £550,000 • 4 bed • 2 bath • 1573 ft²
4 bedroom semi-detached house for sale in Elm Gardens, Mountnessing, Brentwood, CM15 — £590,000 • 4 bed • 2 bath • 1357 ft²
4 bedroom town house for sale in £475,000 - £500,000 Wingway, Brentwood, CM14 — £475,000 • 4 bed • 2 bath • 917 ft²
4 bedroom detached house for sale in The Dell, Great Warley, CM13 — £750,000 • 4 bed • 2 bath • 1275 ft²
4 bedroom semi-detached house for sale in Elm Gardens, Mountnessing, CM15 — £550,000 • 4 bed • 2 bath • 1234 ft²
4 bedroom end of terrace house for sale in Farmer Close, Little Canfield, CM6 — £450,000 • 4 bed • 2 bath • 1222 ft²






























































