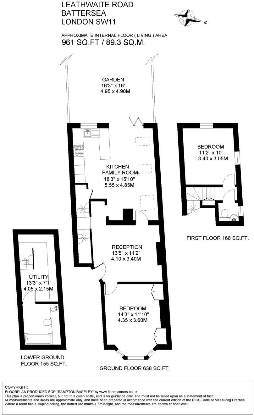
**Standout Features:**
- Two double bedrooms in a split-level layout
- Spacious open-plan kitchen/family room with bi-fold doors
- West-facing garden, perfect for outdoor entertaining
- Utility space and stylish bathroom
- Share of freehold ownership
- Approximately 961 sq ft of living space
**Potential Concerns:**
- 67 years left on the lease, which may pose mortgage challenges
- Solid brick walls with no insulation (assumed)
Nestled on the desirable Leathwaite Road in Battersea, this beautifully presented two-bedroom split-level flat offers a spacious 961 sq ft of contemporary living, ideal for families and savvy investors alike. The open-plan kitchen/family room, bathed in natural light from large skylights and bi-fold doors, creates a seamless flow into the inviting west-facing garden, perfect for al fresco dining and relaxation. The elegant reception area adds versatility for entertaining, complemented by generous bedrooms featuring built-in wardrobes and a charming bay window.
The property also includes a convenient utility area, an additional WC, and a stylish bathroom, while its prime location near popular schools and the lively amenities of Northcote Road enhances its allure. With excellent transport links to central London and the verdant spaces of Clapham Common just a short walk away, the potential for future renovations or extensions makes this home a rare find in a vibrant community. However, the limited lease term of 67 years may deter mortgage lenders, highlighting the importance of potential lease extension negotiations. Embrace comfortable modern living in a location that epitomizes urban sophistication—don’t miss your chance to secure this unique offering!
2 bedroom apartment for sale in Leathwaite Road, SW11 — £700,000 • 2 bed • 1 bath • 800 ft²
2 bedroom apartment for sale in Leathwaite Road, SW11 — £825,000 • 2 bed • 1 bath • 950 ft²
2 bedroom apartment for sale in Almeric Road, SW11 — £875,000 • 2 bed • 2 bath • 1056 ft²
3 bedroom apartment for sale in Broomwood Road, SW11 — £1,000,000 • 3 bed • 2 bath • 1241 ft²
2 bedroom apartment for sale in Bramfield Road, SW11 — £899,995 • 2 bed • 2 bath • 940 ft²
2 bedroom apartment for sale in Lavender Sweep, SW11 — £695,000 • 2 bed • 1 bath • 640 ft²














































