Large lounge, long lease and parking close to seafront and station — practical central living..
Large bright lounge ideal for social living or entertaining
Allocated off-street parking space included
Long lease approx. 172 years — secure tenure
Service charge circa £2,364 per year — budget for maintenance
Area classified very deprived; local crime levels very high
Cavity walls assumed uninsulated — potential higher heating bills
Fast broadband and excellent mobile signal for working from home
Average condition interior; survey recommended before purchase
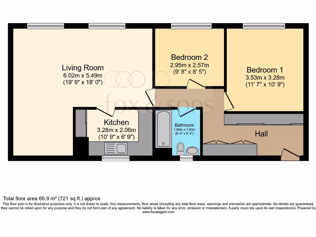
Bright two-bedroom flat in Bayeux Court, a short walk from shops, the seafront and mainline station. The apartment offers a large lounge, separate kitchen area and allocated off-street parking — practical features for everyday living and commuting. With a long lease (approx. 172 years) and fast broadband, it suits first-time buyers or buy-to-let investors seeking straightforward ownership and rental potential.
The building dates from the late 1960s/early 1970s and has a robust, urban character. Interiors are in average condition; double glazing is present though installation date is unknown. Service charge is approximately £2,364 per year and communal maintenance costs should be anticipated. Cavity walls are assumed to have no added insulation, which may impact heating costs despite mains gas heating and radiator system working from a boiler.
Buyers should note the local context: the area is classified as very deprived with very high crime levels, which will affect appeal and resale or rental values. Council tax is reported very cheap, and excellent mobile signal plus fast broadband are practical advantages for modern living. Prospective purchasers are advised to commission a survey and check leasehold documents and any additional costs (lease packs, communal works) before committing.
2 bedroom flat for sale in Arbourvale, St. Leonards-On-Sea, TN38 — £185,000 • 2 bed • 2 bath • 657 ft²
2 bedroom flat for sale in Arbourvale, St. Leonards-On-Sea, TN38 — £174,950 • 2 bed • 2 bath • 636 ft²
2 bedroom flat for sale in Chapel Park Road, St Leonards-on-Sea, TN37 — £190,000 • 2 bed • 1 bath • 779 ft²
2 bedroom flat for sale in Bohemia Road, St. Leonards-On-Sea, TN37 — £175,000 • 2 bed • 1 bath • 765 ft²
2 bedroom flat for sale in Wykeham Road, Hastings TN34 1UN, TN34 — £215,000 • 2 bed • 1 bath • 532 ft²
2 bedroom flat for sale in Castledown Terrace, Hastings, TN34 — £220,000 • 2 bed • 1 bath • 603 ft²


























































