Chain‑free three‑bed dormer bungalow with conservatory and driveway parking..
Chain free three double bedrooms, master with en‑suite
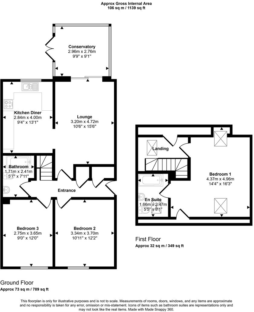
Set on the edge of Pembroke Dock, this semi‑detached dormer bungalow offers practical, flexible accommodation across two storeys. The ground floor includes two double bedrooms, living room, kitchen and a bright conservatory that opens onto a low‑maintenance rear garden. Upstairs the master bedroom benefits from a contemporary en‑suite for privacy and convenience. Driveway parking for multiple cars and side access to the garden add useful everyday practicality.
The property is chain free and presented in a tidy, liveable condition with UPVC double glazing, gas central heating and an EPC rating of C. Its size (about 1,139 sq ft) and three double bedrooms make it suitable for families, first‑time buyers seeking extra space, or investors targeting rental demand in a town‑edge location with good transport links.
Buyers should note some material considerations: the house dates from the 1950s–60s and the cavity walls are assumed to lack insulation, which may affect running costs and could require upgrade work. The wider area is classified as very deprived with above‑average crime levels, and the plot is small — outdoor space is modest. Services and appliances have not been tested.
Overall this is a straightforward, no‑chain opportunity to acquire a versatile family home with scope to improve energy performance and add value, located within walking distance of local shops, schools and the ferry terminal at Pembroke Dock.
2 bedroom semi-detached bungalow for sale in Connaught Place, Pembroke Dock, SA72 — £180,000 • 2 bed • 1 bath • 741 ft²
3 bedroom detached bungalow for sale in Glenview Avenue, Pembroke Dock, SA72 — £230,000 • 3 bed • 1 bath • 894 ft²
3 bedroom bungalow for sale in Charles Thomas Avenue, Pembroke Dock, Pembrokeshire, SA72 — £280,000 • 3 bed • 2 bath • 1220 ft²
2 bedroom bungalow for sale in Connaught Place, Pembroke Dock, Pembrokeshire, SA72 — £160,000 • 2 bed • 1 bath • 701 ft²
3 bedroom detached bungalow for sale in Tudor Close, Pembroke, SA71 — £280,000 • 3 bed • 1 bath • 919 ft²
3 bedroom bungalow for sale in Albany Street, Pembroke Dock, Pembrokeshire, SA72 — £235,000 • 3 bed • 1 bath • 1318 ft²


























































































