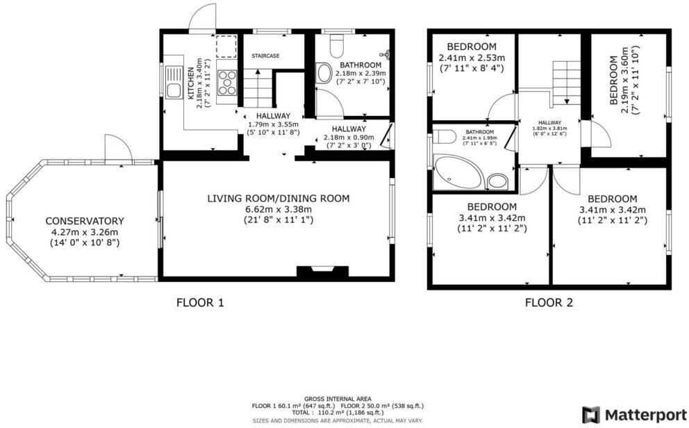
**Standout Features:**
- **Four spacious bedrooms** with two family bathrooms – plenty of space for a growing family.
- **Generous driveway and garage**, accommodating up to three cars.
- **Expansive garden** and versatile conservatory, perfect for outdoor entertaining and family activities.
- Located near **highly acclaimed schools**, making it ideal for families.
- **Low crime area** and strong community feel.
**Concerns:**
- Cavity walls may lack insulation, potentially affecting energy efficiency.
- EPC rating of 67 (D) indicates some improvements may be needed for energy efficiency.
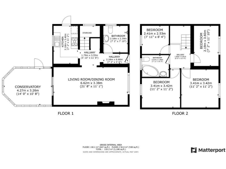
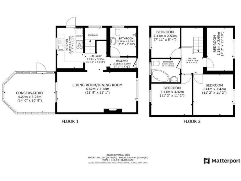
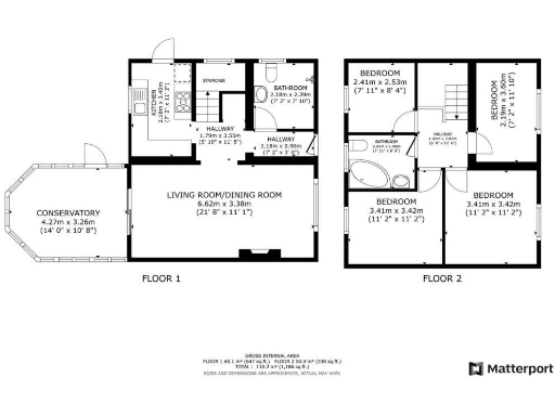
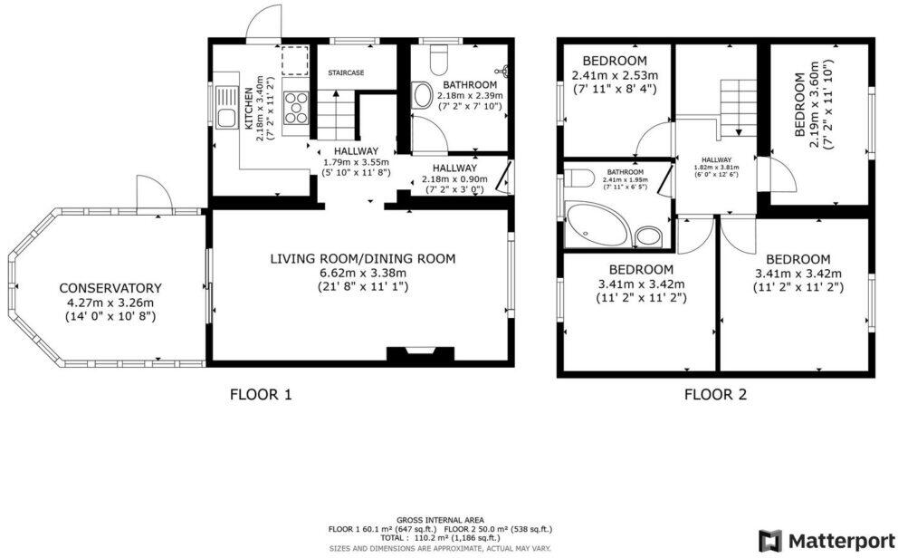
This beautifully presented four-bedroom detached home in Broomfield offers a harmonious blend of comfortable living and family-friendly features. With a spacious driveway and detached garage, you'll have ample parking and storage. Inside, the light-filled lounge diner seamlessly connects to a large conservatory, creating a versatile space perfect for family gatherings. The generous rear garden invites outdoor play and relaxation, while the well-equipped kitchen provides a view of the greenery outside. 
Situated close to excellent schools and local amenities, this property is ideal for families seeking a sense of community and convenience. The property is situated in an affluent and safe neighborhood, ensuring a secure environment for children to thrive. With some potential for renovation or insulation improvements, this home presents an exciting opportunity to add your personal touch and enhance its energy efficiency. Don’t miss your chance to make this cherished family home yours—these opportunities don’t last long!
 4 bedroom detached house for sale in Broomfield Road, Herne Bay, CT6 7BB, CT6 — £425,000 • 4 bed • 1 bath • 1149 ft²
 4 bedroom detached house for sale in Broomfield Road, Herne Bay, CT6 7BB, CT6 — £425,000 • 4 bed • 1 bath • 1149 ft² 4 bedroom semi-detached house for sale in Peartree Road, Herne Bay, CT6 — £385,000 • 4 bed • 1 bath • 1036 ft²
 4 bedroom semi-detached house for sale in Peartree Road, Herne Bay, CT6 — £385,000 • 4 bed • 1 bath • 1036 ft² 4 bedroom detached house for sale in Hawe Farm Way, Herne Bay, CT6 7UD, CT6 — £425,000 • 4 bed • 1 bath
 4 bedroom detached house for sale in Hawe Farm Way, Herne Bay, CT6 7UD, CT6 — £425,000 • 4 bed • 1 bath 5 bedroom detached house for sale in Willow Farm Way, Broomfield, Herne Bay, CT6 — £499,995 • 5 bed • 3 bath • 1112 ft²
 5 bedroom detached house for sale in Willow Farm Way, Broomfield, Herne Bay, CT6 — £499,995 • 5 bed • 3 bath • 1112 ft² 3 bedroom detached house for sale in Honeysuckle Way, Broomfield, Herne Bay, CT6 7AX, CT6 — £360,000 • 3 bed • 2 bath • 743 ft²
 3 bedroom detached house for sale in Honeysuckle Way, Broomfield, Herne Bay, CT6 7AX, CT6 — £360,000 • 3 bed • 2 bath • 743 ft² 4 bedroom detached house for sale in Honeysuckle Way, Herne Bay, Kent, CT6 — £525,000 • 4 bed • 2 bath • 1392 ft²
 4 bedroom detached house for sale in Honeysuckle Way, Herne Bay, Kent, CT6 — £525,000 • 4 bed • 2 bath • 1392 ft²






































































