HA1 3UD - 4 bedroom detached house for sale in Pebworth Road, HARROW,…

View on Property Piper

4 bedroom detached house for sale in Pebworth Road, HARROW, HA1

Summary - 51 PEBWORTH ROAD HARROW HA1 3UD

4 bed 3 bath Detached

**Standout Features:**
- No upper chain
- Detached family home on Pebworth Estate
- Full-width extension at the rear
- Ample living space with two reception rooms and a broad kitchen diner
- Four double bedrooms and three bathrooms
- South-facing rear garden providing excellent sun exposure
- Off-street parking and attached garage
- Potential for further extension (STPP)

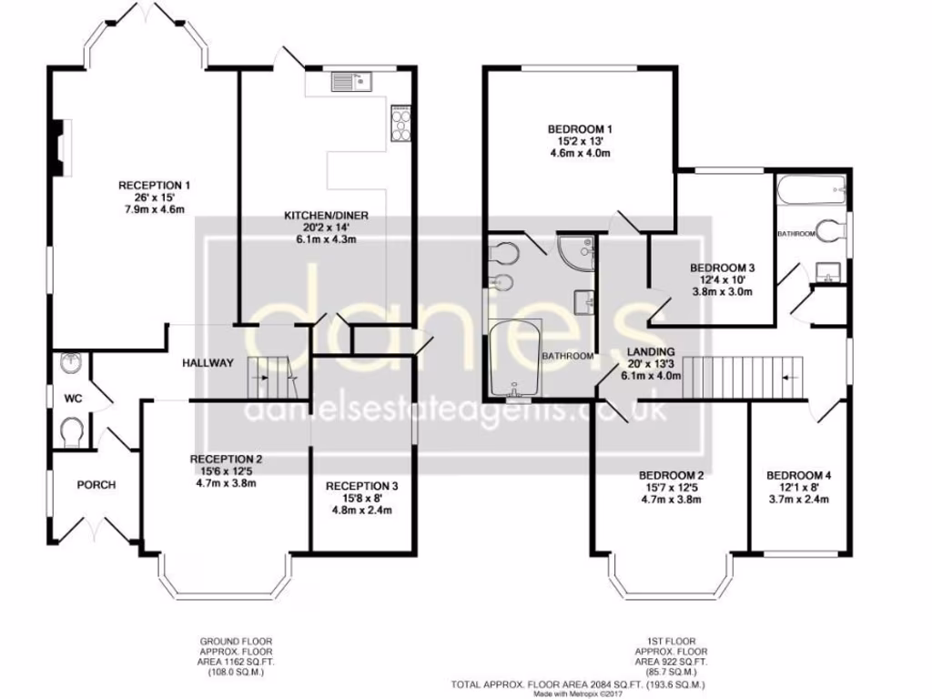
This impressive detached family home, nestled in the sought-after Pebworth Estate, offers a perfect blend of spacious living and modern comforts. Bathed in natural light, the expansive ground floor consists of two reception rooms and a generous kitchen diner, making it ideal for entertaining family and friends. Upstairs, four sizeable double bedrooms provide comfort for growing households, complemented by three well-appointed bathrooms.

The south-facing rear garden is a true delight, ideal for outdoor activities and soaking up the sun. The property also incorporates off-street parking and an attached garage, ensuring both convenience and storage solutions. With planning permission potential for further extension (subject to planning), this home presents an attractive opportunity for those looking to personalize their space. Located within close proximity to top-rated schools and transport links, this property is a gem in a family-friendly neighborhood. Don’t miss out on the chance to make this beautiful home your own!

Property Details

Brochure Descriptions

Image Descriptions

Floorplan Description

Rooms

Textual Property Features

Detected Visual Features

Nearby Schools

Nearest Bars And Restaurants

,,,,}

Nearest General Shops

,,}

Nearest Grocery shops

,,}

Nearest Supermarkets

,,}

Nearest Religious buildings

,,}

Nearest Medical buildings

,,,}

Nearest Airports

,}

Nearest Leisure Facilities

,,,,}

Nearest Tourist attractions

,,}

Nearest Train stations

,,,,}

Nearest Bus stations and stops

,,,,}

Nearest Hotels

,,}

Tags

Local Market Stats

AirBnB Data

Similar Properties

Meta

High Res Images

Compatible Images

Low res Images

Thumbnails

Raw Images

High Res Floorplan Images

Compatible Floorplan Images

Low res Floorplan Images

FloorplanImages Thumbnail

Raw Floorplan Images