Move-in ready two-bedroom home near transport and university.
Newly renovated throughout, move-in ready
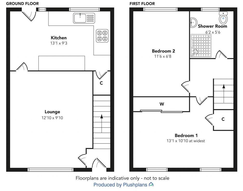
This newly renovated mid-terrace villa offers two double bedrooms and a modern interior throughout, finished to a move-in-ready standard. At about 592 sq ft the layout is compact but well planned, with a bright front lounge, contemporary dining kitchen and an upgraded shower room.
Set at the end of a quiet cul-de-sac in Paisley West End, the house benefits from an enclosed low-maintenance rear garden and plentiful on-street parking. Transport links are strong, with easy access to local bus routes, Paisley Gilmour Street station and the M8 — convenient for commuting and students.
The property is freehold with affordable council tax and fast broadband, making it suitable for first-time buyers or those downsizing who want minimal immediate work. The area is undergoing regeneration, offering potential future uplift, though the wider neighbourhood is classified as very deprived and includes cosmopolitan student areas which can be lively.
Practical points to note: the home is small in overall size and sits within a very deprived ward; buyers should weigh local factors and viewing is recommended. Closing date: Thursday 9th October at 12 noon.
2 bedroom terraced house for sale in Forth Avenue, Paisley, Renfrewshire, PA2 — £82,500 • 2 bed • 1 bath • 932 ft²
2 bedroom terraced house for sale in Sunnylaw Drive, Paisley, PA2 — £175,000 • 2 bed • 1 bath
2 bedroom terraced house for sale in Kilpatrick Crescent, Paisley, Renfrewshire, PA2 — £125,000 • 2 bed • 1 bath
2 bedroom end of terrace house for sale in Stravaig Walk, Paisley, Renfrewshire, PA2 — £145,000 • 2 bed • 2 bath • 600 ft²
2 bedroom villa for sale in 5 Glencally Avenue, Paisley, PA2 7PQ, PA2 — £110,000 • 2 bed • 1 bath • 807 ft²
2 bedroom flat for sale in Broomlands Street, Paisley, PA1 — £78,000 • 2 bed • 1 bath • 797 ft²


















































